Chain-free three-bed terrace with big garden and strong investor yield potential.
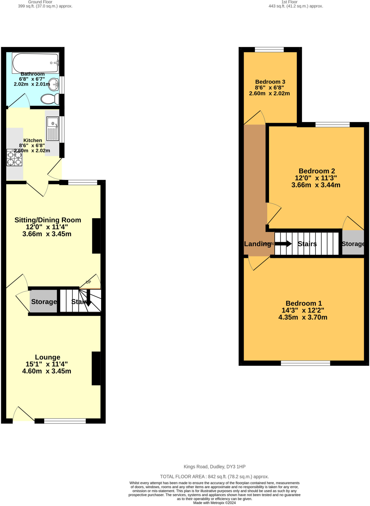
- Chain-free Victorian mid-terrace with three bedrooms
- Two reception rooms and a modern fully tiled bathroom
- Long rear garden; currently overgrown and needs maintenance
- Solid brick walls likely without cavity insulation (as-built)
- On-street parking only; no private driveway
- EPC band D; gas central heating and double glazing present
- Area classed as deprived with higher crime rates
- Strong rental yield potential for investors
A solid Victorian mid-terrace offered chain-free and ready for new owners or landlords. The house provides three generous bedrooms, two reception rooms and a modern first-floor bathroom, set over an average-sized 842 sq ft layout. Its long rear garden is a standout outdoor space with potential for landscaping or rental amenity.
Positioned within walking distance of Sedgley town centre and local amenities, the property benefits from fast broadband, excellent mobile signal and convenient on-street parking. Gas central heating and double glazing are already in place, and the EPC sits at band D. The building is traditional solid-brick construction (circa 1900–1929), so thermal upgrades could improve comfort and running costs.
This home suits investors seeking a strong rental yield in a major conurbation area, or first-time buyers wanting a characterful, affordable entry property. Expect immediate rental demand, but factor in the neighbourhood context: the area is classified as deprived with higher-than-average crime, which may affect tenancy profiles and resale premium.
Practical points to note: the rear garden is currently overgrown and needs maintenance; walls are likely uninsulated as-built; on-street parking only; and some rooms are average in size. These are realistic refurbishment opportunities for value-add buyers seeking to increase energy efficiency and rental income.
2 bedroom terraced house for sale in Kings Road, SEDGLEY, DY3 1HP, DY3 — £175,000 • 2 bed • 1 bath • 777 ft²
3 bedroom terraced house for sale in Dudley Road, Sedgley, DY3 — £190,000 • 3 bed • 1 bath • 1001 ft²
3 bedroom end of terrace house for sale in Cross Lane, SEDGLEY, DY3 1PD, DY3 — £200,000 • 3 bed • 1 bath • 960 ft²
3 bedroom town house for sale in Bath Street, Sedgley, Dudley, West Midlands, DY3 1LS, DY3 — £180,000 • 3 bed • 1 bath • 1002 ft²
2 bedroom semi-detached house for sale in Mill Bank, Sedgley, Dudley, West Midlands, DY3 — £185,000 • 2 bed • 1 bath • 883 ft²
3 bedroom semi-detached house for sale in The Walk, Sedgley, DY3 — £220,000 • 3 bed • 1 bath • 743 ft²


















































