Implemented consent for two bespoke six‑bed homes on a large 0.53‑acre plot near Cambridge.
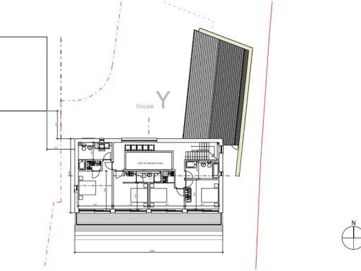
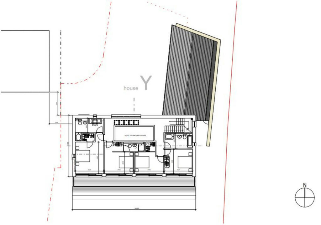
Implemented full planning for two detached six‑bed homes (2.5 storeys each)
Approximately 0.53 acres (0.21 ha) of mostly level land
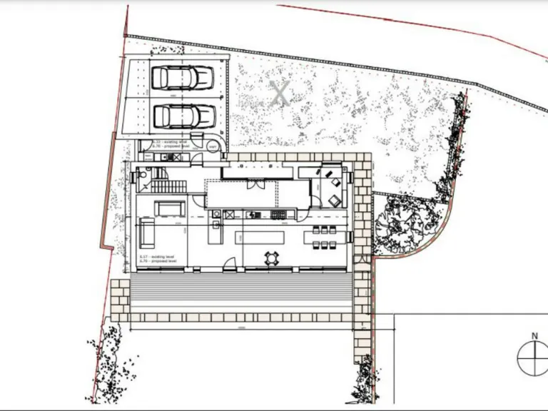
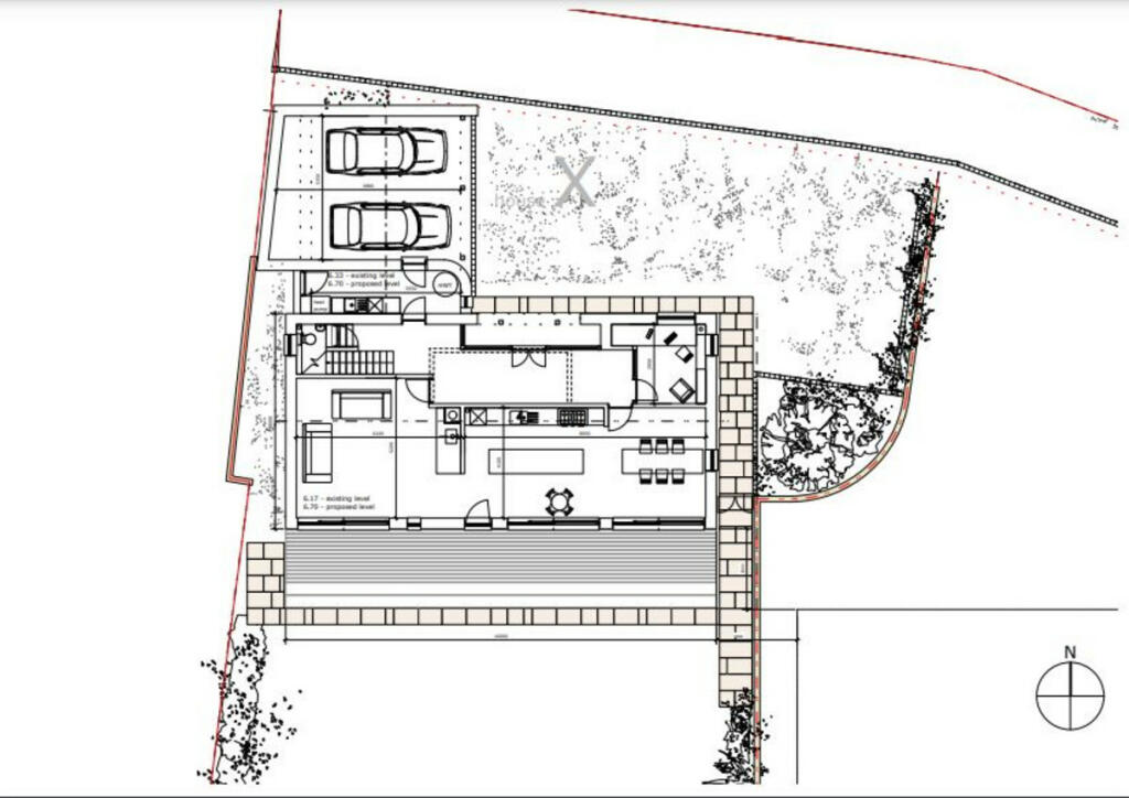
Off‑road parking and open cart‑style garaging consent included
Mains services understood available; 3‑phase electricity present on site
CIL not payable — planning permission recorded as implemented
Sold subject to rights/easements; buyer to verify boundaries
Viewing strictly by appointment; site safety and due diligence required
Very low flood risk, excellent mobile signal and fast broadband
An exceptional development opportunity in St Ives with implemented full planning consent for two detached, bespoke six‑bedroom houses. The level 0.53-acre plot sits directly off London Road and already benefits from approval details covering access, parking and cart‑style garaging — reducing delivery risk for a builder or private developer.
The site is mostly level with mature hedging to the east and clear post‑and‑rail boundaries to the south and west. Mains services are understood to be available nearby, there is a 3‑phase electricity supply on site, and the planning is confirmed implemented so Community Infrastructure Levy (CIL) is not payable for this development.
Practical considerations are clear: the land is sold subject to existing public and private rights (drainage, cables, rights of way), and the buyer must verify boundaries and any outstanding obligations. Viewings are by appointment and the plot must be treated as a working development site — appropriate site safety and due diligence are required.
The location combines village convenience with fast links to Huntingdon and Cambridge, making the completed homes attractive to families and professionals. This is best suited to a developer, builder or investor seeking a near‑ready scheme with minimal planning risk.
Plot for sale in Houghton Road, St. Ives, Cambridgeshire, PE27 — £750,000 • 1 bed • 1 bath • 3403 ft²
Land for sale in Old Houghton Road, Hartford, Huntingdon, Cambridgeshire, PE29 — £1,700,000 • 1 bed • 1 bath • 2627 ft²
Commercial development for sale in Compass Point Business Park, Stocks Bridge Way, St. Ives, Cambridgeshire, PE27 5JL, PE27 — £900,000 • 1 bed • 1 bath
Residential development for sale in Cambridge Road: Fenstanton, PE28 — £2,250,000 • 1 bed • 1 bath
Farm land for sale in Land At Geaves Farm, Hemmingford Grey, St. Ives, Cambridgeshire, PE27 5HF, PE27 — £500,000 • 1 bed • 1 bath
Commercial development for sale in Park Land, Compass Point Business Park, Stocks Bridge Way, St. Ives, Cambridgeshire, PE27 5JL, PE27 — £330,000 • 1 bed • 1 bath • 13504 ft²


































































