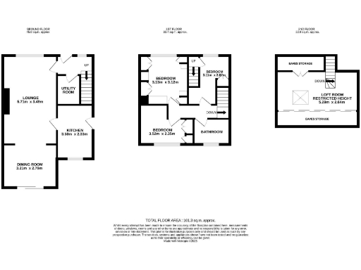
**Standout Features:**
- Extended three-bedroom semi-detached home with loft conversion as an occasional room
- Unique double detached garage; parking for two cars
- Modern fitted kitchen and updated sleek white bathroom
- Spacious lounge leading to dining area; utility room
- Secure front and rear gardens, ideal for family use
- Located in the popular Kingsway area of Wrose
**Potential Downsides:**
- Average-sized rooms; small plot size
- High crime rate in the neighborhood (consider researching further)
- Requires some modernization on exterior appeal
This beautifully presented extended three-bedroom semi-detached home offers the perfect opportunity for young families seeking comfort and convenience in the desirable Kingsway area of Wrose. Priced at £239,950, the property features a contemporary fitted kitchen and a stylish modern bathroom, providing a move-in ready experience. The airy lounge seamlessly connects to a dining area, ideal for family gatherings or entertaining guests. The converted loft space is an added bonus that can serve as an office, playroom, or guest room.
The standout feature of this property is the double detached garage, a rare find that adds significant value and utility. The well-maintained front and rear gardens provide a secure space for children to play while the opportunity for outdoor relaxation awaits. With excellent transport links nearby and highly regarded schools within a short distance, this home is perfectly situated for family living. Don’t miss out on this rare find—schedule your viewing today and envision your future in this charming property before it’s gone!
3 bedroom semi-detached house for sale in Kingsway, Wrose,, BD2 — £194,950 • 3 bed • 1 bath • 883 ft²
4 bedroom detached house for sale in Brookwater Drive, Shipley, BD18 — £399,950 • 4 bed • 2 bath • 1818 ft²
4 bedroom semi-detached house for sale in Kingsway, Wrose, BD2 — £245,000 • 4 bed • 2 bath • 948 ft²
4 bedroom detached house for sale in Burghley Walk, Shipley, BD18 — £380,000 • 4 bed • 2 bath • 1710 ft²
3 bedroom semi-detached house for sale in Plumpton Lea, Bradford, BD2 — £220,000 • 3 bed • 1 bath • 754 ft²
4 bedroom semi-detached house for sale in Willow Crescent, Wrose, Bradford, BD2 — £300,000 • 4 bed • 1 bath • 1369 ft²






























































































