NE1 4BB - 2 bedroom apartment for sale in The Bar, Newcastle Upon Tyn…

View on Property Piper

2 bedroom apartment for sale in The Bar, Newcastle Upon Tyne, Tyne & Wear, NE1

Summary - THE BAR APARTMENT 714 ST JAMES GATE NEWCASTLE UPON TYNE NE1 4BB

2 bed 2 bath Apartment

**Key Features:**
- Two double bedrooms and two bathrooms
- Balcony with city views
- 7% gross yield potential
- Ideal for investors or first-time buyers
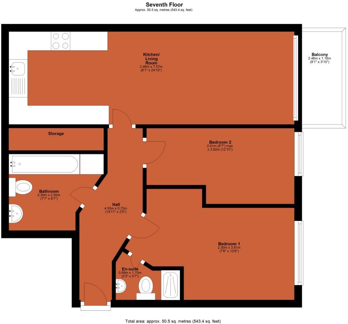
- Approximately 543 sq ft in a contemporary building
- High demand location near Central Station and Newcastle amenities
- Chain-free sale with tenant in place until January 2025
- Council Tax Band C

Welcome to this purpose-built seventh-floor apartment, offering an attractive investment opportunity in a vibrant, cosmopolitan area of Newcastle, recognized for its multicultural student population. This modern apartment features two spacious double bedrooms—including a master with en-suite—and two bathrooms, making it ideal for young professionals or students seeking shared accommodations. The expansive 24ft living room is perfect for entertaining, while the private balcony offers a pleasant outdoor retreat.

Currently generating a gross rental income of £950 per month, this property promises a solid 7% yield, making it a desirable addition to any property portfolio. The apartment is conveniently located within walking distance of Central Station, Newcastle Helix, and a variety of city center amenities. While the area does have a high crime rate and is located in a deprived district, it also benefits from excellent broadband and mobile signals, ensuring a connected lifestyle. With no onward chain and secure, modern living, this opportunity won’t last long—envision yourself in this thriving urban environment today!

Property Details

Image Descriptions

Floorplan Description

Rooms

Textual Property Features

Detected Visual Features

EPC Details

Nearby Schools

Nearest Bars And Restaurants

,,,,}

Nearest General Shops

,,}

Nearest Grocery shops

,,}

Nearest Supermarkets

,,}

Nearest Religious buildings

,,}

Nearest Medical buildings

,,,}

Nearest Airports

,}

Nearest Leisure Facilities

,,,,}

Nearest Tourist attractions

,,}

Nearest Train stations

,,,,}

Nearest Bus stations and stops

,,,,}

Nearest Hotels

,,}

Tags

Local Market Stats

AirBnB Data

Similar Properties

Meta

High Res Images

Compatible Images

Low res Images

Thumbnails

Raw Images

High Res Floorplan Images

Compatible Floorplan Images

Low res Floorplan Images

FloorplanImages Thumbnail

Raw Floorplan Images