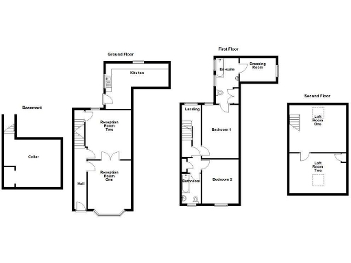
Four-bedroom family house with cellar and loft rooms, close to schools and transport.
Four bedrooms plus two loft rooms — flexible family layout
Victorian stone façade and bay windows with period features
Cellar provides substantial storage or potential conversion
Two bathrooms and large kitchen; plentiful indoor space
EPC F and no wall insulation — energy improvements advised
High flood-risk area; insurance and mitigation may be costly
Small plot with communal rear yard; on-street parking only
Tenure recorded inconsistently (leasehold and freehold) — verify title
This substantial Victorian mid-terrace offers four good-sized bedrooms across multiple floors, cellar storage and two reception rooms — a practical layout for a growing family or rental portfolio. The property’s traditional stone façade, high ceilings and bay windows retain period character while the loft rooms add flexible living space.
Practical advantages include a sizeable kitchen, two bathrooms, mains gas central heating and fast broadband with excellent mobile signal. On-street parking and easy access to major road and public-transport links make daily commuting straightforward. Local primary schools rated Good and an Outstanding option nearby add appeal for families.
Buyers should note several material issues: the EPC rating is F, wall insulation appears absent, and the property lies in a high flood-risk area. The plot is small with a communal rear yard, and on-street parking only. Records show conflicting tenure information (both leasehold and freehold reported); interested parties must verify legal title.
Overall this is a spacious, characterful Victorian terrace with clear scope for energy improvements and cosmetic upgrading. It suits purchasers who want generous room sizes and conversion potential, or investors seeking a property with immediate rental and development prospects once remedial work and energy upgrades are completed.
4 bedroom terraced house for sale in Woodlea Bank, Waterfoot, Rossendale, BB4 — £275,000 • 4 bed • 1 bath • 1647 ft²
2 bedroom terraced house for sale in Melbourne Street, Waterfoot, Rossendale, BB4 — £164,950 • 2 bed • 1 bath • 882 ft²
2 bedroom terraced house for sale in Bacup Road, Rawtenstall, Rossendale, BB4 — £159,950 • 2 bed • 1 bath • 1227 ft²
3 bedroom terraced house for sale in Prospect Street, Waterfoot, Rossendale, BB4 — £130,000 • 3 bed • 1 bath • 765 ft²
2 bedroom terraced house for sale in Burnley Road East, Rossendale, Lancashire, BB4 — £150,000 • 2 bed • 1 bath
4 bedroom terraced house for sale in Haslingden Road, Rossendale, Lancashire, BB4 6RE, BB4 — £275,000 • 4 bed • 2 bath • 958 ft²


































































































