**Standout Features:**
- Fully renovated end-terrace with attic dormer conversion
- Spacious 3-bedroom layout with high-spec finishes
- Stunning master suite with Juliet balcony and en-suite
- Generous lounge with a wood-burning stove
- Fabulous dining kitchen with integral appliances
- Low-maintenance, west-facing garden
- Proximity to good primary and secondary schools and commuter links
- Virtual tour available
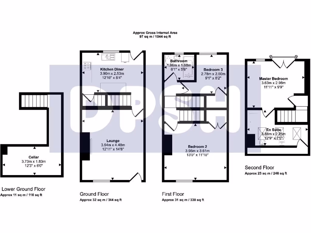
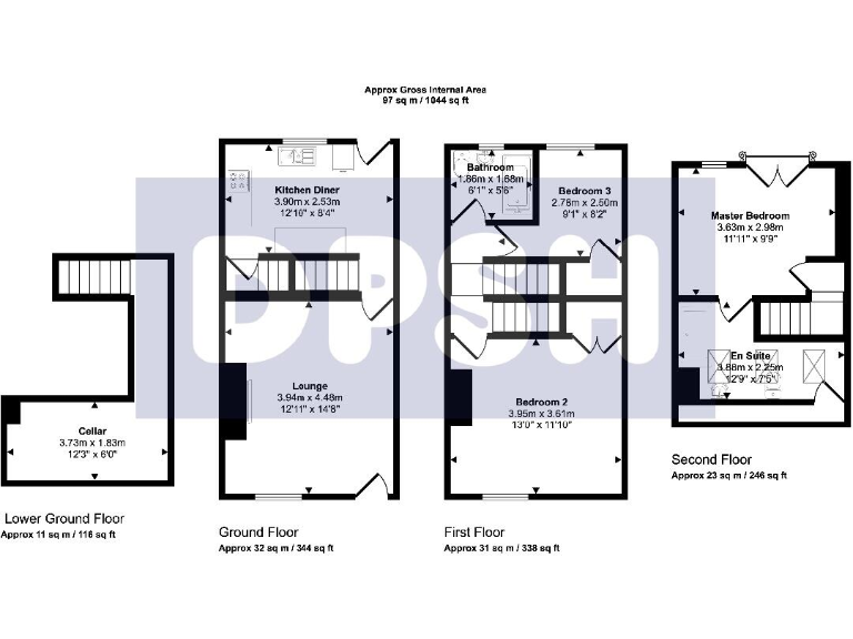
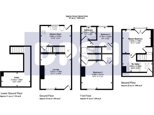
Nestled on Pawson Street in Robin Hood, Wakefield, this exceptional three-bedroom end-terrace offers a harmonious blend of modern elegance and practical living, ideal for families, professionals, or investors. Recently transformed to a high standard, the property boasts an inviting lounge complete with a cozy wood-burning stove and a contemporary dining kitchen featuring top-of-the-line integrated appliances. Step into the stunning attic dormer conversion, where the master bedroom dazzles with a Juliet balcony providing far-reaching views and an en-suite shower room.
Enjoy the fully enclosed west-facing garden, perfect for outdoor relaxation and entertaining. Within walking distance, you'll find highly-rated schools such as Robin Hood Primary and Rodillian Academy, enhancing the property's appeal for family-friendly living. Convenient transport links ensure easy commutes. With its blend of stylish design and functionality, this home is a rare gem in today’s market—viewings are highly encouraged to appreciate the quality and spaciousness of this unique offering. Don't miss out on making this captivating residence your own!
3 bedroom terraced house for sale in Pawson Street, Robin Hood, WAKEFIELD, WF3 — £210,000 • 3 bed • 1 bath • 662 ft²
3 bedroom semi-detached house for sale in The Rowans, Robin Hood, Wakefield, WF3 — £265,000 • 3 bed • 3 bath • 926 ft²
3 bedroom house for sale in Eton Walk, Wakefield, WF1 — £315,000 • 3 bed • 1 bath • 958 ft²
3 bedroom semi-detached house for sale in Manorfield Drive, Horbury, Wakefield, WF4 — £195,000 • 3 bed • 1 bath • 780 ft²
3 bedroom terraced house for sale in Clifton Place, Wakefield, WF1 — £240,000 • 3 bed • 1 bath • 1002 ft²
3 bedroom semi-detached house for sale in Bevin Crescent, Wakefield, WF1 — £220,000 • 3 bed • 1 bath • 753 ft²


























































































































































