TQ3 2AU - 2 bed victorian town cottage in Lower Polsham Road, TQ3 2AU

View on Property Piper

2 bedroom terraced house for sale in Lower Polsham Road Paignton, TQ3

Summary - 15 LOWER POLSHAM ROAD PAIGNTON TQ3 2AU

2 bed 1 bath Terraced

Compact two-bedroom central home with low bills and seaside access.
Grade II listed cottage, mid-1800s character features
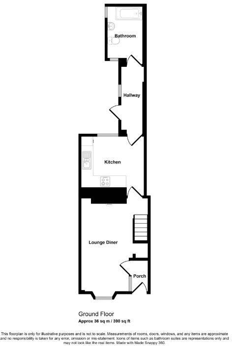
Set in the heart of Paignton, this Grade II listed two-bedroom cottage offers compact, characterful living just a level walk from the seafront, pier and mainline station. The ground floor has an open-plan lounge/dining area, fitted kitchen with integrated appliances and a convenient ground-floor bathroom. A recently replaced combination boiler (2022) provides gas-fired central heating.

The property is chain-free and freehold, with a small paved cottage-style garden and rear access path. At around 360 sq ft the house is best suited to first-time buyers, downsizers or those seeking a low-maintenance central base. Fast broadband and excellent mobile signal are positive practical features for modern living.

Important considerations: listed status means alterations will be restricted and may require specialist consent. The house is small and will feel compact for families; the area records very high crime and significant deprivation, which buyers should factor into affordability and insurance costs. Council tax is very low, and the central location gives excellent access to local shops, schools and transport links.

Overall this is a characterful period home offering immediate occupancy and scope for sympathetic updating, particularly attractive if you prioritise location, historical charm and low running costs over generous space.

Property Details

Brochure Descriptions

Image Descriptions

Floorplan Description

Rooms

Textual Property Features

Target Audience

AI Tags

Detected Visual Features

Nearby Schools

Nearest Bars And Restaurants

,,,,}

Nearest General Shops

,,}

Nearest Grocery shops

,,}

Nearest Supermarkets

,,}

Nearest Religious buildings

,,}

Nearest Medical buildings

,,,}

Nearest Leisure Facilities

,,,,}

Nearest Tourist attractions

,,}

Nearest Train stations

,,,,}

Nearest Bus stations and stops

,,,,}

Nearest Hotels

,,}

Tags

Local Market Stats

AirBnB Data

Similar Properties

Meta

High Res Images

Compatible Images

Low res Images

Thumbnails

Raw Images

High Res Floorplan Images

Compatible Floorplan Images

Low res Floorplan Images

FloorplanImages Thumbnail

Raw Floorplan Images