Move-in ready two-bedroom home near stations and quality school catchment.
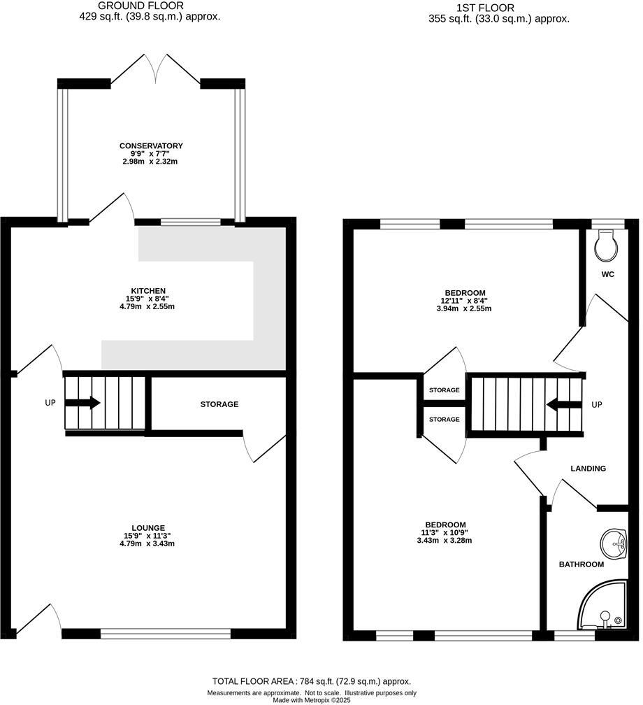
Bright lounge with large front window and parquet flooring
Contemporary kitchen/diner with practical layout
Conservatory adds extra living space overlooking westerly garden
Two well-proportioned bedrooms and stylish family bathroom
Freehold tenure; total floor area about 784 sq ft
Off-street block-paved driveway for two vehicles
Small plot and garden; limited scope without consent to extend
Area classified as deprived; average crime — check local services
This well-presented mid-terrace home offers an efficient 784 sq ft layout ideal for first-time buyers or small families. The ground floor combines a bright lounge, contemporary kitchen/diner and a conservatory that extends the living space, while two upstairs bedrooms and a stylish bathroom complete the accommodation. A westerly-facing rear garden and block-paved driveway for off-street parking add practical outdoor space.
Location is a clear strength: under two miles to Brentwood and Shenfield stations for swift links into London, and within the St Martin’s School catchment. The property is freehold and ready to occupy with tasteful finishes throughout, making it straightforward for buyers seeking a move-in option with scope to add value later.
Buyers should note some practical considerations. The plot is modest and the garden small for extensive landscaping; any rear extension or reconfiguration would need planning consent. The surrounding area is classified as economically challenged with average crime levels; prospective purchasers should satisfy themselves on local services and long-term area plans.
Overall, this terraced house balances comfortable, contemporary living with commuter convenience. It’s a sensible purchase for those wanting a well-presented starter home with realistic potential to personalise and improve over time.
2 bedroom end of terrace house for sale in Hawthorn Avenue, Brentwood, Essex, CM13 — £400,000 • 2 bed • 1 bath • 702 ft²
3 bedroom terraced house for sale in Eastham Crescent, Brentwood, CM13 — £425,000 • 3 bed • 1 bath • 895 ft²
2 bedroom terraced house for sale in Running Waters, Brentwood, CM13 — £365,000 • 2 bed • 1 bath • 747 ft²
2 bedroom semi-detached house for sale in Orchard Lane, Pilgrims Hatch, CM15 — £500,000 • 2 bed • 1 bath • 1066 ft²
3 bedroom terraced house for sale in Thrift Green, Brentwood, Essex, CM13 — £400,000 • 3 bed • 1 bath • 854 ft²
3 bedroom end of terrace house for sale in Mayfield Gardens, Brentwood, CM14 — £450,000 • 3 bed • 2 bath • 1141 ft²


























































