0.68 acre freehold site with church and attached presbytery
Approx. building area: church + presbytery circa 7,360 ft² (684 m²)
Overall site footprint reported ~29,621 ft² (very large plot)
Prominent roadside location opposite Lidl supermarket
Derelict/unkempt condition — significant repair or full refurbishment needed
Residential development potential, subject to planning permission
High local crime and very deprived area — market demand caution
Excellent mobile signal and fast broadband; no flood risk
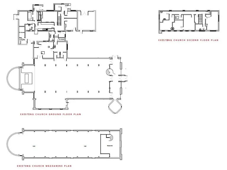
A prominent 0.68-acre freehold site on Millais Road with a two-storey former church and attached presbytery offers clear redevelopment potential, subject to planning permission. The main church building displays distinctive arched windows and architectural character; the attached presbytery provides substantial ancillary space, reported as 4–5 bedrooms above reception rooms. The combined building area is noted as circa 7,360 ft² (684 m²) with an overall site total of approximately 29,621 ft².
The plot sits directly opposite a Lidl supermarket and fronts busy Millais Road, giving strong roadside visibility and easy access to local retail and transport links. Utilities and connectivity are advantageous for redevelopment—excellent mobile signal and fast broadband are recorded—and there is no noted flood risk. The setting is urban and surrounded by mixed residential and commercial uses, which supports either residential conversion or mixed-use schemes.
Buyers should factor in clear constraints: the site is in a very deprived area with high local crime levels, and the buildings are described as derelict/unkempt requiring significant repair or full refurbishment. Any change of use or subdivision will require planning permission; costs and timescales for remediation, conversion and potential structural works are likely to be material. This is a value-driven opportunity for an experienced investor or developer prepared to manage planning, repair and local-market risks.



























































