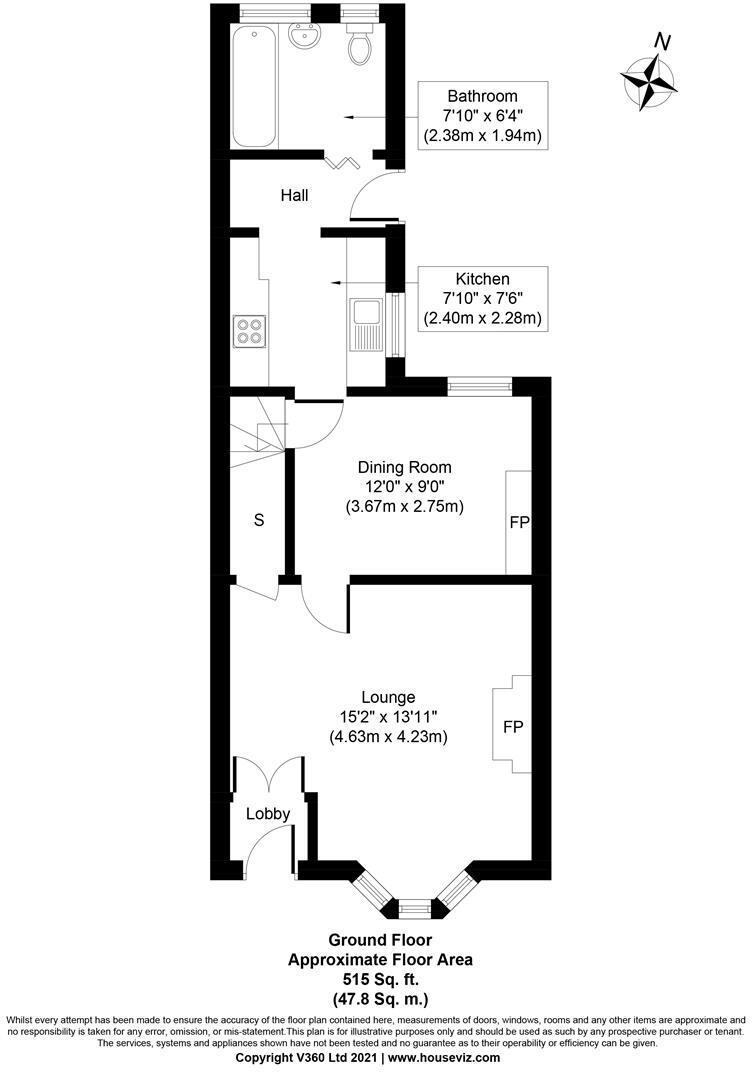
- Edwardian end-terrace with high ceilings and period character
- Three bedrooms, separate lounge and dining room
- Ground-floor bathroom; compact kitchen
- Small enclosed rear yard and forecourt, low maintenance
- EPC D; solid brick walls likely uninsulated
- Located close to Selby town centre and commuter links
- Area shows higher crime and local deprivation indicators
- Small overall size; may suit first-time buyer or investor
A compact Edwardian end-terrace on Richard Street, this three-bedroom home offers immediate occupancy or rental potential close to Selby town centre and commuter links. High ceilings, original brickwork and separate lounge and dining rooms give genuine character and flexible living space across two floors. The rear yard and small enclosed forecourt require little upkeep and suit buyers seeking low-exterior maintenance.
Practicalities are straightforward: gas central heating to radiators, double glazing (install date unknown) and a ground-floor bathroom. The property is freehold with a very low council tax band and an EPC rating of D. At about 724 sq ft the house is small overall and rooms are modestly proportioned — ideal for first-time buyers or investors targeting local rental demand.
Important negatives are clear and should inform any offer. The area shows higher crime and local deprivation indicators; the wider neighbourhood is described as “hampered aspiration” with constrained rental demand patterns. The wall construction is solid brick with no obvious cavity insulation (assumed), so buyers should budget for thermal upgrades and possible rewiring or modernisation works. The interior will suit those happy to refresh rather than move into a fully modernised home.
Viewing is strongly recommended and a video tour is available to help assess room sizes and condition. This house presents a characterful, affordable entry into Selby ownership with short-term let potential or scope to add value through targeted refurbishment and energy-efficiency improvements.



















































