Move-in ready two-bedroom home with conservatory, garage and drive.
Pristine move-in condition throughout, newly refurbished interiors
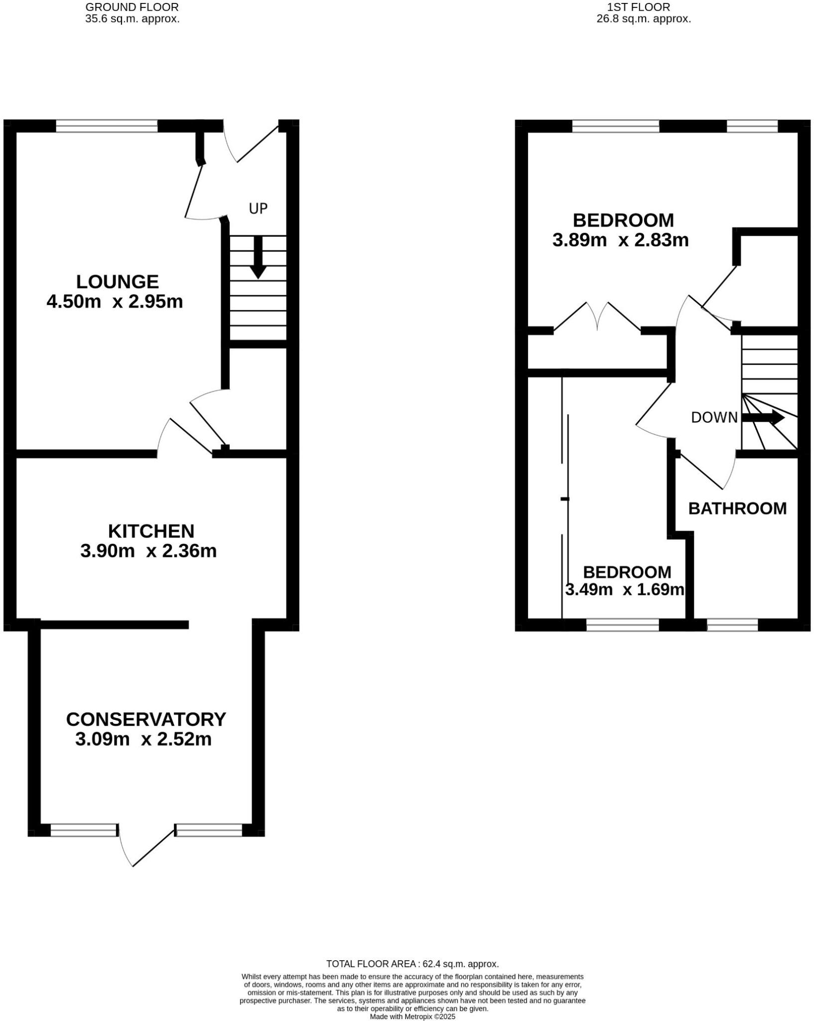
A pristine, move-in ready two-bedroom mid-mews home on a quiet cul-de-sac in the Cote Farm development. The current owners have updated the property throughout: the kitchen and bathroom are modern, UPVC double glazing is fitted with plantation shutters, and a new Ideal condensing combi-boiler provides gas central heating.
The insulated conservatory with a lightweight tiled roof extends usable living space year-round, and the layout includes useful storage, a handy laundry cupboard under the stairs and built-in wardrobes in the main bedroom. Outside there are enclosed front and rear gardens, a driveway for two cars and a semi-detached garage with light and power.
Space is compact — the property totals about 671 sq ft and the second bedroom is small, currently used as a dressing room. Buyers should note services and appliances have not been independently tested and a survey is recommended. With fast broadband, excellent mobile signal and low local crime, this home suits a first-time buyer or couple seeking a low-maintenance starter home with parking and garage convenience.
2 bedroom terraced house for sale in Tinkler Stile, Thackley,, BD10 — £185,000 • 2 bed • 1 bath • 567 ft²
3 bedroom end of terrace house for sale in Rush Croft, Thackley,, BD10 — £289,999 • 3 bed • 2 bath • 1184 ft²
3 bedroom terraced house for sale in Near Crook, Thackley,, BD10 — £259,950 • 3 bed • 2 bath
3 bedroom detached house for sale in Near Crook, Thackley,, BD10 — £365,000 • 3 bed • 2 bath • 1772 ft²
4 bedroom detached house for sale in Far Crook, Thackley,, BD10 — £375,000 • 4 bed • 2 bath • 1131 ft²
3 bedroom end of terrace house for sale in The Mistal, Thackley,, BD10 — £247,950 • 3 bed • 2 bath • 905 ft²










































































