RG9 1QJ - 2 bedroom retirement property for sale in Sherwood Gardens,…

View on Property Piper

2 bedroom retirement property for sale in Sherwood Gardens, Henley-On-Thames, RG9

Summary - 22 SHERWOOD GARDENS HENLEY-ON-THAMES RG9 1QJ

2 bed 1 bath Retirement Property

### Standout Features:
- Detached bungalow in a serene, retirement community
- Two spacious double bedrooms
- Private patio area plus well-maintained communal gardens
- Gas central heating, cavity wall insulation, and double glazing
- Less than a mile from Henley town centre and amenities
- Freehold tenure, chain-free sale
- Average service charge and low council tax

### Summary:
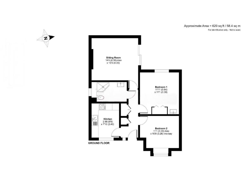
Discover comfort and tranquility in this delightful detached bungalow, nestled within a sought-after retirement community exclusively for those aged 65 and over. At just under a mile from Henley town centre, this charming two-bedroom home offers a cozy living space with a well-proportioned living room, equipped kitchen, and a modern wet-room. The principal bedroom features lovely views of the communal gardens, while the second bedroom is also generously sized. Enjoy sunny afternoons on your private patio, surrounded by beautifully landscaped communal grounds.

This well-presented property boasts ample storage and modern conveniences, including double glazing and gas central heating, ensuring year-round comfort. Perfect for retirees seeking a peaceful lifestyle close to local shops, a bus service, and recreational activities, this bungalow is competitively priced at £350,000. Although the service charge is £2,473 annually, the property's location and amenities provide excellent value. Don’t miss your chance to embrace this easy-going lifestyle in a vibrant, community-focused area!

Property Details

Image Descriptions

Floorplan Description

Rooms

Textual Property Features

Detected Visual Features

EPC Details

Nearby Schools

Nearest Bars And Restaurants

,,,,}

Nearest General Shops

,,}

Nearest Grocery shops

,,}

Nearest Supermarkets

,,}

Nearest Religious buildings

,,}

Nearest Medical buildings

,,,}

Nearest Airports

}

Nearest Leisure Facilities

,,,,}

Nearest Tourist attractions

,,}

Nearest Train stations

,,,,}

Nearest Bus stations and stops

,,,,}

Nearest Hotels

,,}

Tags

Local Market Stats

AirBnB Data

Similar Properties

Meta

High Res Images

Compatible Images

Low res Images

Thumbnails

Raw Images

High Res Floorplan Images

Compatible Floorplan Images

Low res Floorplan Images

FloorplanImages Thumbnail

Raw Floorplan Images