Adapted period home with a sunny, low-maintenance courtyard garden for family life.
Grade II listed period cottage with original beams and inglenook fireplace
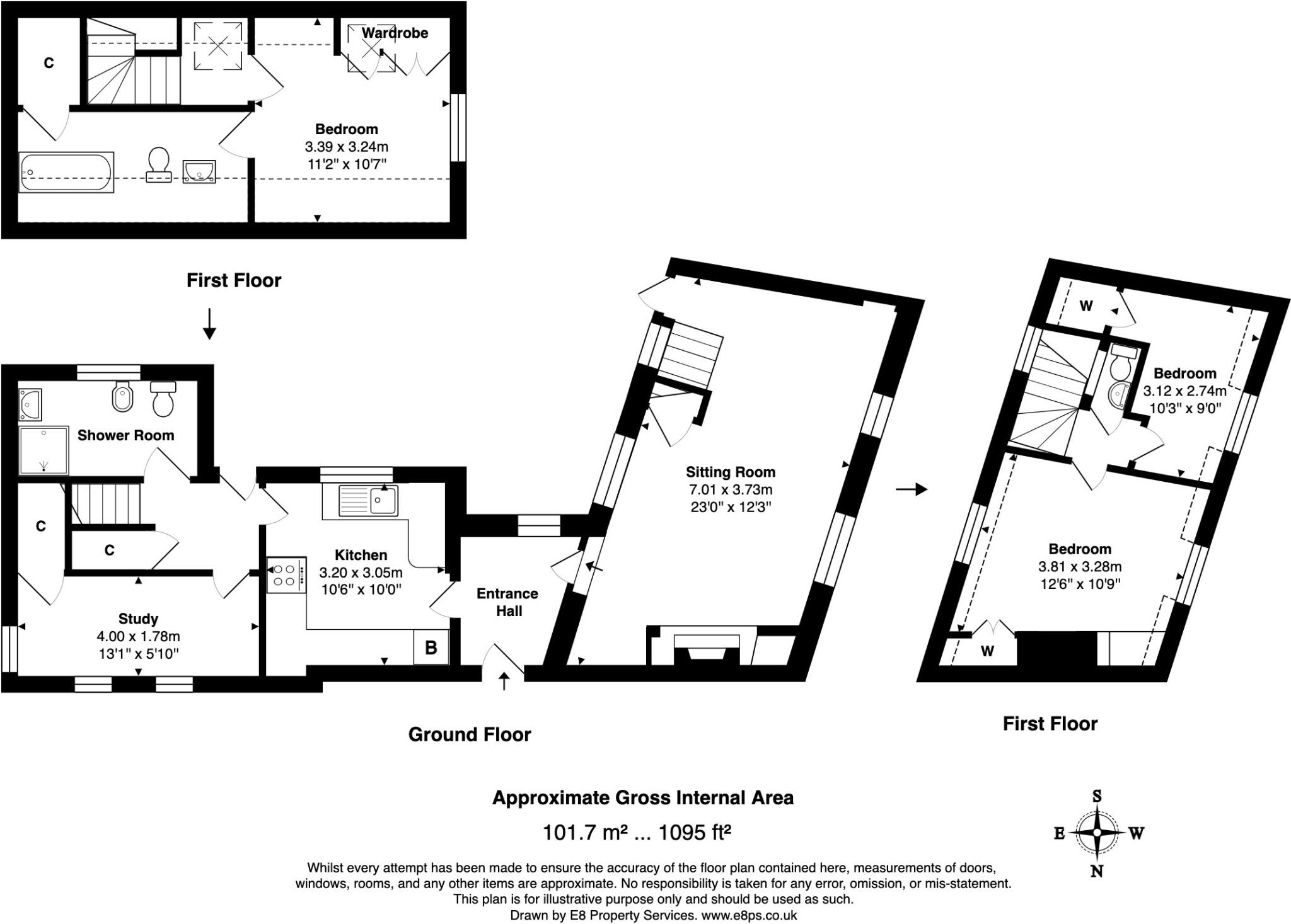
This Grade II listed stone cottage blends historic charm with a substantial two-storey rear extension, creating flexible family accommodation across multiple levels. Original features include exposed beams, an inglenook fireplace and stone chimney breast in the beamed sitting room, while the extension provides a modern en-suite master bedroom, ground-floor shower room and a versatile garden room/utility/office.
The south-facing courtyard garden is low-maintenance and private, ideal for outdoor dining and safe play, while the house benefits from gas central heating, fast broadband potential and a Freehold tenure. The property is an average-sized family home with six principal rooms totalling about 1,095 sq ft and a small plot size typical of cottage settings.
Important practical points: listed status means any alterations will be subject to planning and conservation constraints and could complicate renovations. Interior room sizes are typical of period cottages, so some rooms feel compact. There is no notable flood risk and local crime levels are low.
Set in a sought-after village with excellent day-to-day amenities, nearby good and outstanding schools, and regular buses to Oxford and Witney, this cottage will suit buyers seeking period character with modernised living spaces in a prosperous countryside community.
4 bedroom end of terrace house for sale in High Street, Eynsham, Oxfordshire, OX29 — £750,000 • 4 bed • 2 bath • 2293 ft²
2 bedroom terraced house for sale in Acre End Street, Eynsham, Oxfordshire, OX29 — £600,000 • 2 bed • 1 bath • 1148 ft²
3 bedroom terraced house for sale in West End, Witney, OX28 — £425,000 • 3 bed • 1 bath • 1419 ft²
3 bedroom detached house for sale in Townsend, Harwell, Didcot, OX11 0DX, OX11 — £700,000 • 3 bed • 1 bath • 2011 ft²
4 bedroom end of terrace house for sale in Acre End Street, Eynsham, Witney, Oxfordshire, OX29 — £845,000 • 4 bed • 2 bath • 2977 ft²
2 bedroom cottage for sale in Windrush, Oxfordshire, OX18 — £499,000 • 2 bed • 1 bath • 999 ft²










































