Chain-free three-bed with garage, driveway and scope to extend (STP)..
South-west facing rear garden with strong long-distance views
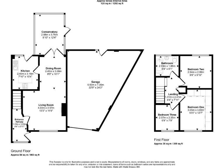
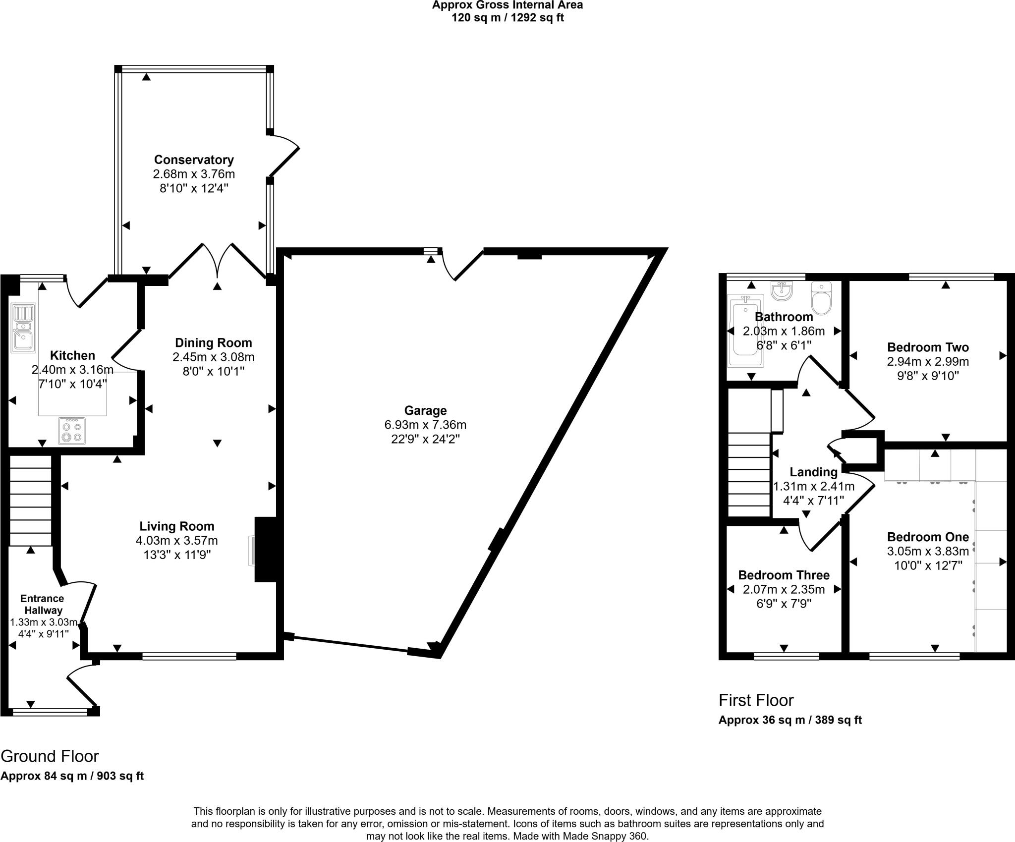
Set on a south-west facing plot in sought-after Graigwen, this three-bedroom semi-detached house offers strong first-home potential with no onward chain. The property sits on a generous plot with block-paved off-road parking, a large garage with front and rear access, and a two-tier rear garden with decking and lawn – all benefiting from far-reaching rear views. A modern refitted kitchen, UPVC double glazing and mains gas central heating make it move-in ready in many respects.
The layout includes an entrance porch, open-plan living/dining room, conservatory, and downstairs kitchen, with two double bedrooms, a single bedroom and family bathroom upstairs. The house dates from the late 1970s/early 1980s and has partial cavity wall insulation; the EPC is currently D with potential to improve to B. There is clear scope to extend to the rear (subject to planning), as neighbouring properties demonstrate, which would increase living space and resale value.
Practical advantages include excellent mobile signal, fast broadband, and easy A470/M4 access for commuters. Local amenities, primary schools and Pontypridd town centre are a short drive away. Council tax sits at band C and the tenure is freehold.
Buyers should note material negatives honestly: the wider area shows high crime levels and considerable deprivation, which may affect insurance, future buyer pools and resale times. The property has a single bathroom and dates from the post‑war era, so some elements (insulation, finishes, mechanical systems) may require updating over time. Planning for extensions would be subject to approvals.
2 bedroom semi-detached house for sale in Glas Cwm, Coed-Y-Cwm, Pontypridd, CF37 — £272,000 • 2 bed • 1 bath • 959 ft²
3 bedroom semi-detached house for sale in Dan Yr Allt Close, Rhydyfelin, Pontypridd, CF37 — £210,000 • 3 bed • 1 bath • 881 ft²
3 bedroom semi-detached house for sale in Pantygraigwen Road, Pantygraigwen, Pontypridd, CF37 — £325,000 • 3 bed • 1 bath • 1418 ft²
3 bedroom semi-detached house for sale in Lanwood Road, Pontypridd, CF37 — £230,000 • 3 bed • 1 bath • 1025 ft²
3 bedroom semi-detached house for sale in Graigwen, Morganstown, Cardiff, CF15 8LH, CF15 — £300,000 • 3 bed • 1 bath • 722 ft²
3 bedroom semi-detached house for sale in Dyffryn Crescent, Rhydyfelin, Pontypridd, CF37 — £175,000 • 3 bed • 1 bath • 837 ft²


























































































