Chain-free starter home with garden and cellar — renovation opportunity.
Two double bedrooms, traditional mid-terrace layout
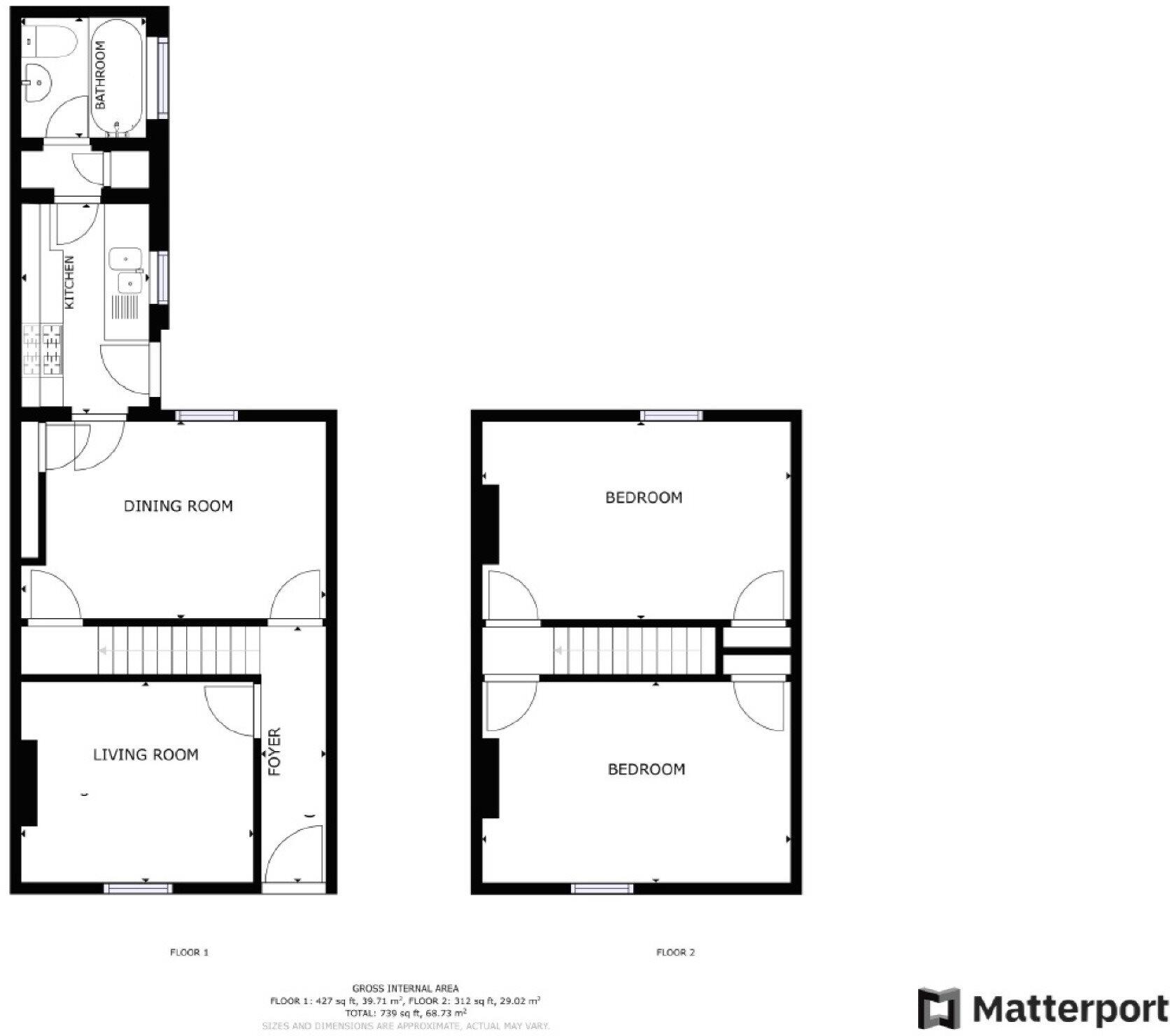
This two-bedroom Victorian terrace on Milton Avenue is offered chain free and ready for a buyer looking to personalise their first home. The layout provides a front lounge, separate dining room, kitchen, ground-floor bathroom and cellar space, plus a small private courtyard garden. Double glazing was fitted after 2002 and the property is heated by a mains-gas boiler and radiators.
The house is solid brick and dates from before 1900, so there is clear scope to improve thermal performance and modernise interiors. The property needs renovation throughout; upgrades will raise comfort and energy efficiency (current EPC rating D). Council tax is low (band A), and the freehold tenure is straightforward.
Location benefits include fast broadband and excellent mobile signal, handy bus links and a range of nearby schools rated Good. The area is classified as very deprived with above-average crime levels and a small plot size, which are important considerations for buyers assessing long-term suitability.
For a first-time buyer or investor prepared to renovate, this home offers value and potential: create a comfortable, energy-improved living space or a rented asset in a well-connected town setting. The chain-free position allows a quicker move once works and budgets are planned.
2 bedroom terraced house for sale in Milton Avenue, Margate, Kent, CT9 — £190,000 • 2 bed • 1 bath • 699 ft²
2 bedroom terraced house for sale in Milton Avenue, Margate, Kent, CT9 — £185,000 • 2 bed • 1 bath • 581 ft²
2 bedroom terraced house for sale in Byron Avenue, Margate, CT9 — £225,000 • 2 bed • 1 bath • 786 ft²
2 bedroom terraced house for sale in Milton Avenue, Margate, CT9 — £190,000 • 2 bed • 1 bath • 847 ft²
2 bedroom terraced house for sale in Buckingham Road, Margate, Kent, CT9 — £240,000 • 2 bed • 1 bath • 861 ft²
2 bedroom terraced house for sale in Poets Corner, Margate, Kent, CT9 — £195,000 • 2 bed • 1 bath • 601 ft²


























































































