Spacious three-bedroom apartment with river views, concierge and parking.
South-facing reception with uninterrupted River Thames views
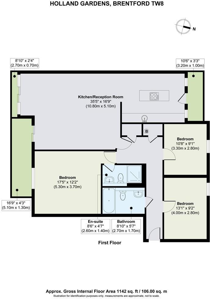
Positioned on the first floor of the Holland Gardens development, this three-bedroom apartment offers a rare riverside aspect with uninterrupted views over the River Thames and a private south-facing balcony. The large reception flows into a semi open-plan kitchen with integrated appliances and a separate outlook across the manicured communal gardens, creating a light, sociable living space ideal for family life or professional entertaining.
The principal bedroom includes built-in wardrobes and an en suite shower room; two further double bedrooms and a modern family bathroom provide flexible accommodation for a family, home office or guests. Residents benefit from practical conveniences including lift access, 24-hour concierge, an allocated secure underground parking space and on-site gym and sauna facilities.
Important practical points are clear: the property is leasehold with a very long remaining term (circa 976 years) and modest ground rent (£250 pa), but an above-average service charge (about £6,600 pa) and council tax band F which will affect running costs. Heating is electric with room heaters rather than a communal gas system, and the area is inner-city cosmopolitan with average crime levels and pockets of deprivation nearby.
Overall this is a sizeable, well-appointed three-bedroom apartment (approx. 1,142 sq ft) that sells primarily on its river views, generous living space and on-site amenities. It will suit families or professionals who prioritise location, security and riverfront living, and who are comfortable with the higher ongoing service and tax costs.
3 bedroom apartment for sale in Holland Gardens, Brentford, TW8 — £650,000 • 3 bed • 2 bath • 1157 ft²
3 bedroom apartment for sale in Holland Gardens, Brentford, TW8 — £650,000 • 3 bed • 2 bath • 1127 ft²
2 bedroom flat for sale in Holland Gardens, Brentford, TW8 — £450,000 • 2 bed • 2 bath • 795 ft²
3 bedroom apartment for sale in Pump House Crescent, Brentford, TW8 — £850,000 • 3 bed • 2 bath • 1040 ft²
3 bedroom apartment for sale in Pump House Crescent, Brentford, TW8 — £800,000 • 3 bed • 2 bath • 1045 ft²
3 bedroom flat for sale in Holland Gardens, Brentford, TW8 — £549,000 • 3 bed • 2 bath • 1256 ft²


























































































































