Huge plot with garage and planning permission for a 4-bedroom family home.
Includes 6.5m double garage and mains services — circa £60,000 value included
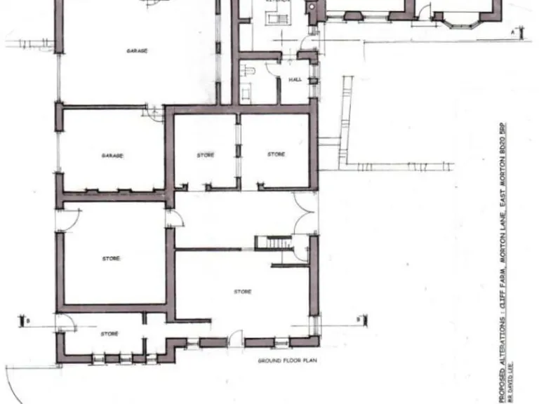
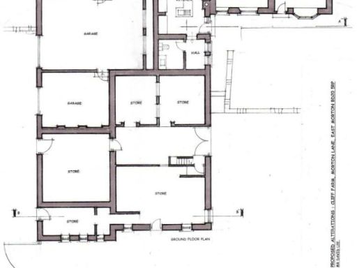
This rare building plot at Cliff Farm, East Morton, is offered with planning permission to part-demolish and extend, creating a substantial 4-bedroom family home across about 1,120 sq ft. The sale includes a high-quality 6.5m double garage and mains services already run to the plot — savings estimated at around £60,000 — and ample off-street parking for up to four vehicles.
Set within a small exclusive enclave of just three homes, the level site enjoys fine views over farmland and a large garden, giving scope for generous indoor-outdoor family living. The proposed layout allows for a big open-plan living–dining–kitchen, separate living room, study and utility, which suits family life and flexible working from home.
Practical considerations are clear: the existing structures date from the early 20th century and walls are likely uninsulated, so completing the conversion and new-build will require thermal upgrading and finishing works. Broadband is average locally and some modernisation will be needed to realise the full potential of the scheme.
For families wanting countryside views with good transport links, the plot sits within easy reach of two Metro stations (about 1.2 miles) and Leeds Bradford Airport (≈9.5 miles). Local schools rate well and low local crime and an affluent area classification add to the appeal. This plot is best suited to a buyer prepared to lead a bespoke build or conversion to create a high-spec family home.
Plot for sale in Breakmoor Avenue, Silsden,, BD20 — £220,000 • 1 bed • 1 bath
Plot for sale in Land with planning permission at St. Johns Park, Menston, Ilkley, LS29 — £600,000 • 1 bed • 1 bath • 2100 ft²
Plot for sale in Building Plot, Park View, Skipton, BD23 — £300,000 • 4 bed • 4 bath • 2300 ft²
Plot for sale in Trough Lane, Denholme, Bradford, West Yorkshire, BD13 — £295,000 • 5 bed • 3 bath • 2430 ft²
Plot for sale in Gilstead Lane, Bingley, West Yorkshire, BD16 — £750,000 • 1 bed • 1 bath
5 bedroom detached house for sale in Ilkley Road, Burley in Wharfedale, LS29 — £1,164,000 • 5 bed • 3 bath • 2133 ft²


































































