Large plot, flexible living and high-spec finishes for growing families.
Bespoke three-storey family home built 2018, high-spec fittings
Open-plan living/dining/kitchen with sliding doors to South‑East patio
Excellent EPC B and ground-floor underfloor heating
Double garage with insulated attic studio above (flexible use)
Huge plot with lawned front and rear gardens and large driveway
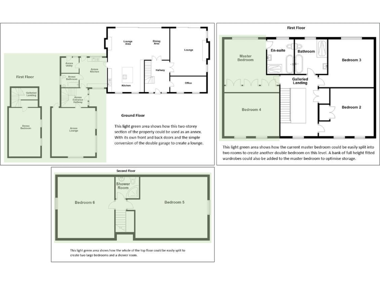
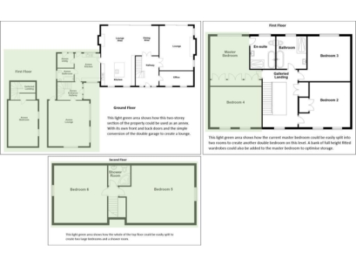
Currently four bedrooms; easily reconfigurable to up to seven
Potential annex via garage conversion — subject to planning consents
Remoter location: slow broadband, average mobile signal; council tax expensive
Strawberry View is a substantial, modern family home designed and built to bespoke specifications in 2018. Spread over three storeys, it currently offers four main bedrooms with straightforward reconfiguration to provide up to seven bedrooms, plus a well-insulated attic studio above the double garage. The centrepiece is a bright, dual-aspect open-plan living/dining/kitchen with sliding doors to a South‑East patio and lawned rear garden — ideal for family life and entertaining.
The house benefits from practical, energy-efficient features including an excellent EPC B rating and zone-controlled underfloor heating across the ground floor. Reception space is generous: a dual-aspect lounge with multi-fuel stove, a large utility and boiler/drying room with water softener, and a dedicated office. The double garage and attic room give flexibility for a home studio, guest suite or potential annex (subject to planning and building regulation consents).
Outside, the house sits back from the road behind walled boundaries, a large gravel driveway and extensive, well-kept gardens front and rear. The rear patio faces South‑East and opens onto a huge plot that provides privacy, family outdoor space and room for garden projects or play. Local services in Burgh le Marsh include a supermarket, primary school, doctors and good road links to Skegness and Lincoln.
Important practical points: the property is in a quieter, remoter community with average mobile signal and slow broadband speeds, which may affect home working or heavy internet use. Council tax is noted as expensive. Any conversion of the garage to create an annex will require the necessary consents.
4 bedroom detached house for sale in Station Road, Burgh Le Marsh, PE24 — £575,000 • 4 bed • 3 bath • 1975 ft²
5 bedroom bungalow for sale in Rawsons Lane, Boston, PE21 9HT, PE21 — £575,000 • 5 bed • 3 bath • 2810 ft²
4 bedroom detached house for sale in Catchpole Grove, Stickford, PE22 8EA, PE22 — £420,000 • 4 bed • 3 bath • 1683 ft²
5 bedroom detached house for sale in Main Road, Hundleby, Spilsby, PE23 5NQ, PE23 — £849,995 • 5 bed • 5 bath • 3429 ft²
6 bedroom detached house for sale in Holmes Road, Kirton Holme,PE20 — £650,000 • 6 bed • 4 bath • 3965 ft²
5 bedroom detached house for sale in Skeldyke Road, Kirton, PE20 1LR, PE20 — £570,000 • 5 bed • 2 bath • 3348 ft²






















































































































































