**Standout Features:**
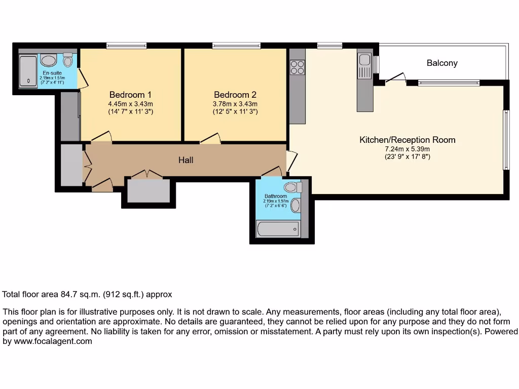
- Spacious fourth-floor apartment in Liddiard House, Greenwich Millennium Village
- Two double bedrooms, including one with an ensuite shower room and built-in wardrobe
- Modern fitted kitchen with integrated appliances and open-plan living area
- Private balcony with urban views
- High-quality decor and flooring throughout
- 24-hour concierge services for added security and convenience
- Dedicated storage unit and secure bicycle storage available
- Excellent transport links to central London
**Summary:**
Discover your urban oasis in this contemporary fourth-floor apartment located in the vibrant Greenwich Millennium Village. Boasting an expansive open-plan living, dining, and kitchen area, this stylishflat features two spacious double bedrooms, including one with a convenient ensuite and built-in wardrobe. Step out onto your private balcony to enjoy a slice of outdoor living with stunning urban views.
The apartment’s modern design is complemented by high-quality finishes and a fully tiled bathroom with a shower overhead, ensuring comfort and elegance. Additional perks include a dedicated storage unit, secure bicycle storage, and an attentive 24-hour concierge service, enhancing your lifestyle and security.
With outstanding transport options just a short distance away—North Greenwich Station and Westcombe Park Station—this property is ideal for commuters seeking swift access to central London. Situated in an affluent area surrounded by reputable schools and abundant amenities, it's perfect for first-time buyers, small families, or investors. Don’t miss this opportunity to own a premium piece of city living—properties like this are in demand and won’t last long!
2 bedroom flat for sale in Trathen Square, Greenwich, SE10 — £550,000 • 2 bed • 2 bath • 892 ft²
2 bedroom apartment for sale in Becquerel Court, West Parkside, SE10 — £465,000 • 2 bed • 2 bath • 1003 ft²
2 bedroom apartment for sale in West Parkside, Cochrane Lodge, Greenwich, SE10 — £525,000 • 2 bed • 2 bath • 911 ft²
2 bedroom apartment for sale in Latimer Square, London, SE10 — £550,000 • 2 bed • 2 bath • 819 ft²
2 bedroom apartment for sale in Alamaro Lodge, Renaissance Walk, London, SE10 — £465,000 • 2 bed • 2 bath • 1077 ft²
3 bedroom apartment for sale in West Parkside, Greenwich, SE10 — £530,000 • 3 bed • 2 bath • 1144 ft²






























































