Compact, low-maintenance retirement flat with communal facilities and parking.
Warden-assisted over-55s development with active communal life
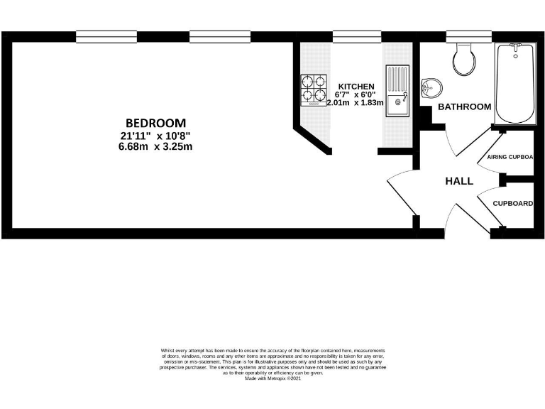
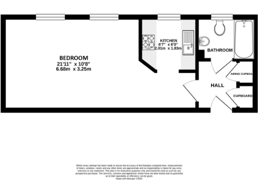
A compact, well-presented studio-style apartment in a warden-assisted over‑55s development, offered chain free and ready for immediate occupation. The layout provides an entrance lobby with useful storage, a refitted bathroom, a separate fitted kitchen with a feature archway and a main living/bedroom flooded with natural light from double glazing. Lift access and on-site communal facilities — including a furnished lounge, laundry, library, secure scooter storage and landscaped gardens — make daily life low-maintenance and sociable.
Practical running costs include an annual service charge of about £2,149 and a lease of 89 years remaining; the property is leasehold and heated by electric storage heaters. The apartment will suit someone seeking a manageable retirement home within a community that organises regular social events and provides warden assistance rather than buyers wanting a large private garden or major renovation potential.
Location is convenient for local shops and a Morrisons, with Festival Place and leisure amenities close by. Transport links are strong for Basingstoke — easy access to the M3 and regular trains to London — but note the area records higher local crime and wider indicators of deprivation, which prospective buyers should factor into their decision.
Retirement property for sale in Westdeane Court, Basingstoke, RG21 — £44,950 • 1 bed • 1 bath • 324 ft²
1 bedroom retirement property for sale in Hillstead Court, Basingstoke, RG21 — £100,000 • 1 bed • 1 bath • 442 ft²
2 bedroom apartment for sale in Gershwin Court, Basingstoke, RG22 — £115,000 • 2 bed • 1 bath • 551 ft²
1 bedroom retirement property for sale in Lady Susan Court, New Road, Basingstoke, RG21 — £160,000 • 1 bed • 1 bath • 391 ft²
1 bedroom apartment for sale in Kendal Gardens, Basingstoke, Hampshire, RG22 — £100,000 • 1 bed • 1 bath • 446 ft²
2 bedroom flat for sale in Gershwin Court,Basingstoke,RG22 4NN, RG22 — £115,000 • 2 bed • 1 bath • 531 ft²






































































