Chain-free cottage with planning permission to create a four-bedroom family home.
Detached period cottage with exposed beams and stone features
Rose Cottage is a detached period cottage set in the sought-after village of Faulkland, offered chain-free and ready for internal viewing. The house retains strong character — exposed beams, stone features and a cosy fireplace — and sits within mature gardens with a large gravel forecourt and off-street parking.
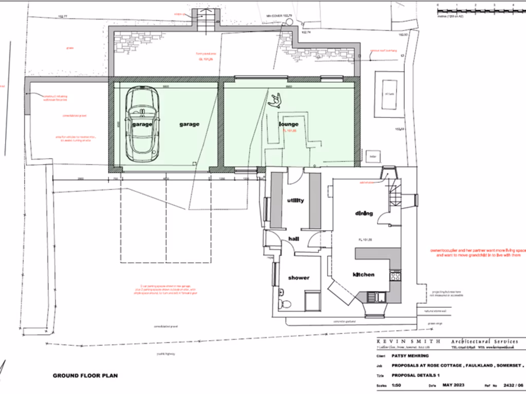
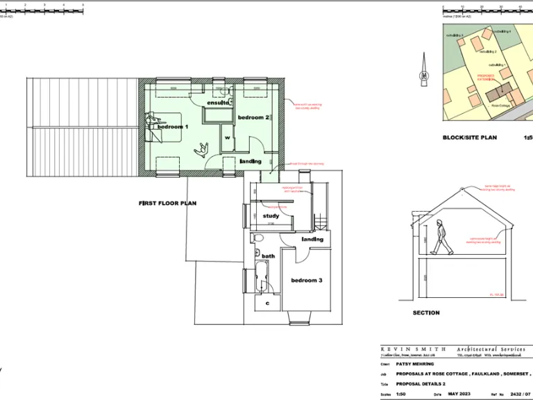
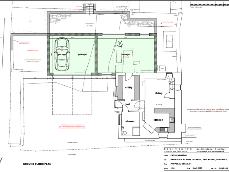
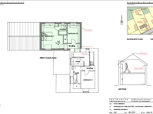
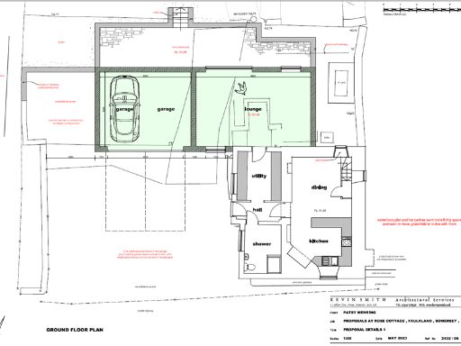
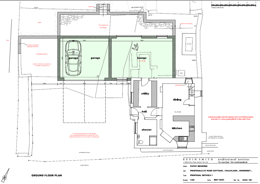
Significant planning permission is already in place to extend into a four-bedroom family home with a double garage. That consent makes this a rare opportunity for someone wanting to create a larger family house while keeping period charm and a generous plot.
The current accommodation is compact: lounge/diner, separate kitchen, shower/utility area on the ground floor and two double bedrooms plus a family bathroom upstairs. Heating relies on dual fuel (mineral and wood) room heaters, so buyers should expect to modernise heating and potentially other services. Broadband speeds are slow, and the overall internal footprint is small — important considerations if you need immediate space or fast connectivity.
This property will suit owners seeking a character cottage with clear extension potential in a peaceful, affluent rural setting. It will particularly appeal to buyers prepared to invest in renovation and modernisation to unlock the permitted four-bedroom layout and add long-term value.
3 bedroom cottage for sale in Faulkland, Somerset, BA3 — £375,000 • 3 bed • 1 bath • 867 ft²
3 bedroom cottage for sale in High Street, Faulkland, BA3 — £360,000 • 3 bed • 2 bath • 951 ft²
2 bedroom semi-detached house for sale in Red House Cottages, Stratton-on-the-Fosse, Radstock, BA3 — £250,000 • 2 bed • 1 bath • 911 ft²
3 bedroom semi-detached house for sale in Bishop Street, Somerset, BA3 — £535,000 • 3 bed • 1 bath • 1614 ft²
3 bedroom cottage for sale in Turners Tower, Faulkland, BA3 — £294,950 • 3 bed • 1 bath • 1358 ft²
2 bedroom cottage for sale in Highbury Street, Coleford, BA3 — £205,000 • 2 bed • 1 bath • 532 ft²


















































































