Well-located four-bed detached home with double garage and large landscaped garden..
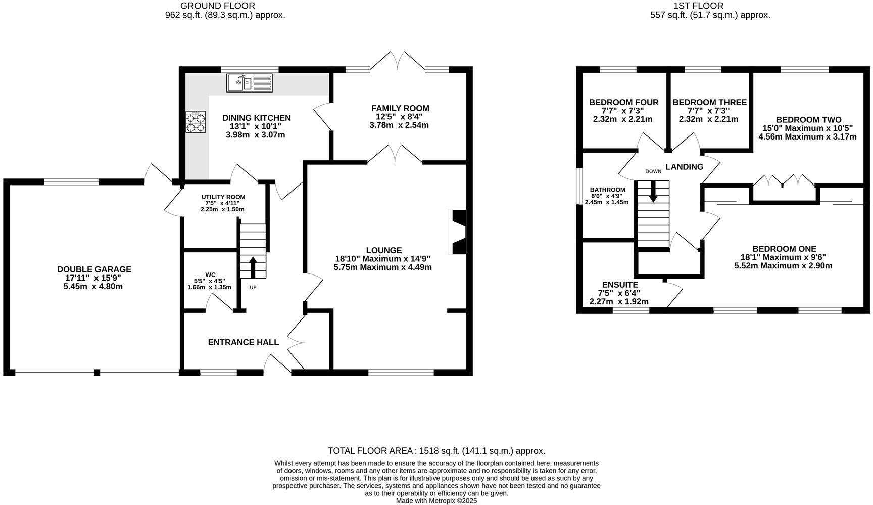
Detached four-bedroom family home over 1,500 sqft
Large landscaped tiered garden backing onto fields
Integral double garage plus driveway parking for multiple cars
Two reception rooms, dining kitchen, utility and WC
Principal bedroom with ensuite; four bedrooms total
Broadband speeds are slow despite excellent mobile signal
Council Tax Band E — above average running costs
Appliances/central heating not tested; verification recommended
Set on a quiet cul-de-sac in Middlewich, this detached four-bedroom family home offers over 1,500 sqft of practical, flexible living. Ground floor layout includes two reception rooms, a dining kitchen, utility, and guest WC, with direct access into the integral double garage — ideal for families needing storage and parking. The property sits on a large, landscaped, tiered garden backing onto open fields, providing privacy and a pleasant outlook.
Bedrooms are arranged over the first floor, including a generous principal bedroom with ensuite. The house is presented with good curb appeal and contemporary finishes in many areas, but there is clear scope for internal modernisation to suit personal taste — potential to add value through cosmetic updates or reconfiguration. Prospective buyers should note the vendor has not tested appliances or the central heating system; buyers must satisfy themselves on these points prior to contract.
Practical considerations: broadband speeds are slow despite excellent mobile signal, and the property is in Council Tax Band E (above average). The home is freehold, sits in a very low-crime, affluent area and benefits from strong local schools and easy road links to the M6 and wider commuting routes. Overall this is a comfortable, well-located family home with attractive outdoor space and renovation potential.
4 bedroom detached house for sale in Bramble Close, Middlewich, CW10 — £370,000 • 4 bed • 3 bath • 1514 ft²
4 bedroom detached house for sale in Pembroke Place, Middlewich, CW10 — £325,000 • 4 bed • 3 bath • 1012 ft²
4 bedroom detached house for sale in Boreay Close, Middlewich, CW10 — £340,000 • 4 bed • 3 bath • 1066 ft²
4 bedroom town house for sale in Regency Walk, Middlewich, CW10 — £270,000 • 4 bed • 2 bath • 1162 ft²
4 bedroom detached house for sale in St Anns Road, Middlewich, CW10 — £450,000 • 4 bed • 2 bath • 1396 ft²
4 bedroom detached house for sale in Gloucester Avenue, Middlewich, CW10 — £350,000 • 4 bed • 3 bath • 1378 ft²


























































































































































