PR7 6HX - 3 bedroom detached house for sale in Balshaw Lane, Euxton,…

View on Property Piper

3 bedroom detached house for sale in Balshaw Lane, Euxton, Chorley, PR7

Summary - 19 Balshaw Lane, Euxton PR7 6HX

3 bed 2 bath Detached

**Standout Features:**
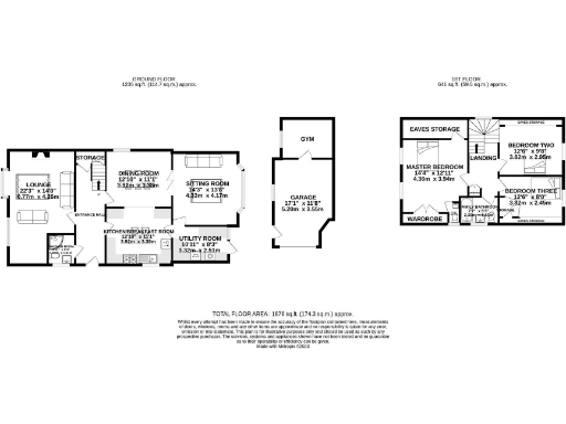
- Spacious detached dormer bungalow with approximately 1,876 sq ft of living space
- Three bedrooms, including a master with ensuite and built-in wardrobes
- Large driveway accommodating 5-6 cars, plus a single garage
- Generous, versatile garden not overlooked, ideal for families
- Close proximity to outstanding schools and local amenities
- Convenient transport links to nearby cities

**Concerns:**
- Dated decor in some areas, particularly the living room
- Cavity walls with no insulation may require attention

Discover this exceptional three-bedroom detached dormer bungalow nestled in the sought-after Euxton area of Chorley. This family-friendly home spans a generous 1,876 sq ft and features a spacious layout conducive to comfortable living and entertaining, including a welcoming entrance hall, a sizable living room with an open fireplace, and an expansive kitchen/dining space with island seating. The utility room adds practicality, while the charming rear lounge connects seamlessly to the delightful garden, perfect for outdoor enjoyment.

Upstairs, all three bedrooms have ample space for double beds, accommodating families of any size, while the master bedroom comes with an ensuite and fitted storage. The property boasts a large driveway and a low-maintenance garden, complete with a single garage previously used as a home gym.

Positioned conveniently close to amenities, parks, and reputable schools with outstanding ratings, this bungalow is perfect for families or investors alike. Although some areas present renovation opportunities, the solid structure and spacious layout offer vast potential for personalization. As demand in this desirable area is high, viewing this property soon is highly recommended. Don’t miss your chance to make this delightful home yours!

Property Details

Image Descriptions

Floorplan Description

Rooms

Textual Property Features

Detected Visual Features

EPC Details

Nearby Schools

Nearest Bars And Restaurants

,,,,}

Nearest General Shops

,,}

Nearest Grocery shops

,,}

Nearest Supermarkets

,,}

Nearest Religious buildings

,,}

Nearest Medical buildings

,,,}

Nearest Leisure Facilities

,,,,}

Nearest Tourist attractions

,,}

Nearest Train stations

,,,,}

Nearest Bus stations and stops

,,,,}

Nearest Hotels

,,}

Tags

Local Market Stats

Similar Properties

Meta

High Res Images

Compatible Images

Low res Images

Thumbnails

Raw Images

High Res Floorplan Images

Compatible Floorplan Images

Low res Floorplan Images

FloorplanImages Thumbnail

Raw Floorplan Images