CW9 7SZ - 4 bedroom detached house for sale in Holmes Chapel Road, La…

View on Property Piper

4 bedroom detached house for sale in Holmes Chapel Road, Lach Dennis, CW9

Summary - Holmes Chapel Road, Lach Dennis CW9 7SZ

4 bed 3 bath Detached

**Standout Features:**
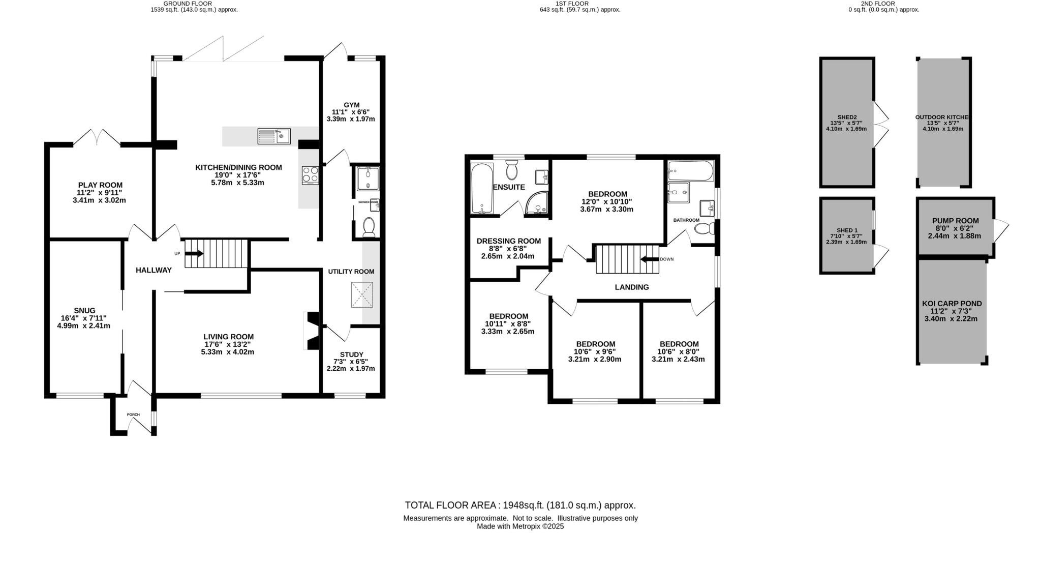
- Spacious 4-bedroom, 3-bathroom detached home
- Thoughtfully extended and well-designed for modern family living
- Open-plan kitchen/dining area with island and garden access
- High-quality outdoor features including an outdoor kitchen and koi pond
- Generous landscaped rear garden with two patios
- Master suite with dressing room and en-suite bathroom
- Off-street parking with a stone-flagged driveway
- Chain-free sale and freehold tenure

**Summary:**
Nestled in the highly desirable village of Lach Dennis, this exceptional four-bedroom detached home offers an impressive blend of space and comfort, making it perfect for families. The expansive open-plan layout features a modern kitchen-dining area that flows into a cozy snug and versatile playroom—ideal for everyday living and entertaining.

Upstairs, the luxurious master suite with its dressing room and en-suite bathroom provides a private sanctuary, while three additional well-sized bedrooms are complemented by a stylish family bathroom. Outside, the beautifully landscaped rear garden becomes a personal retreat with two patios, an outdoor kitchen equipped with power and water, and a stunning koi pond complete with concealed lighting and a pump room, perfect for entertaining.

With ample off-street parking and a prime location equidistant to Knutsford and Holmes Chapel, this property not only offers modern living but also has excellent future potential. Don't miss the chance to make this home yours—properties of this caliber in Lach Dennis are in high demand and won't stay on the market for long!

Property Details

Brochure Descriptions

Image Descriptions

Floorplan Description

Rooms

Textual Property Features

Detected Visual Features

EPC Details

Nearby Schools

Nearest Bars And Restaurants

,,,,}

Nearest General Shops

,,}

Nearest Grocery shops

,,}

Nearest Supermarkets

,,}

Nearest Religious buildings

,,}

Nearest Medical buildings

,,,}

Nearest Airports

}

Nearest Leisure Facilities

,,,,}

Nearest Tourist attractions

,,}

Nearest Train stations

,,,,}

Nearest Bus stations and stops

,,,,}

Nearest Hotels

,,}

Tags

Local Market Stats

Similar Properties

Meta

High Res Images

Compatible Images

Low res Images

Thumbnails

Raw Images

High Res Floorplan Images

Compatible Floorplan Images

Low res Floorplan Images

FloorplanImages Thumbnail

Raw Floorplan Images