**Standout Features:**
- Chain-free fourth-floor apartment in the heart of Uxbridge
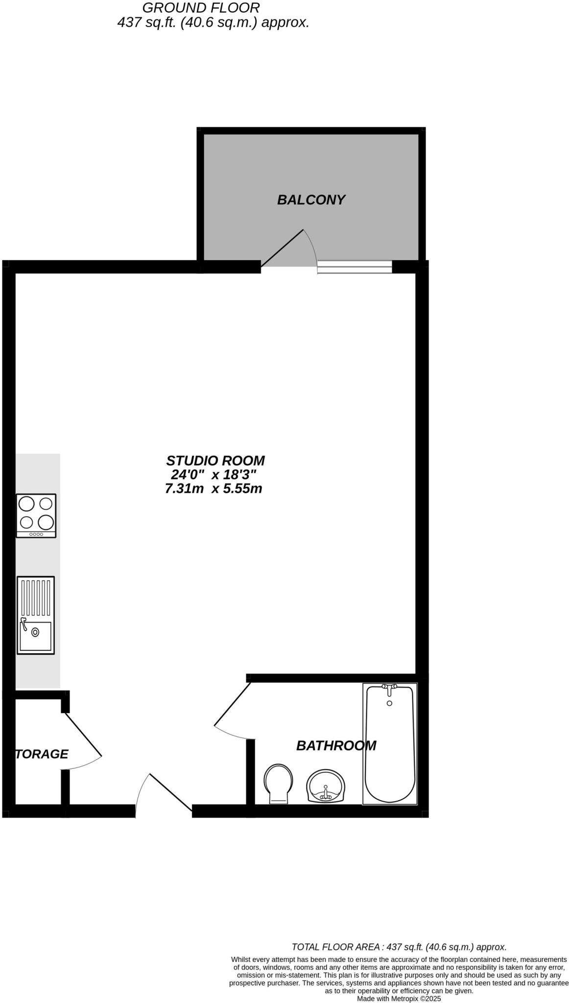
- Access to a roof garden and private balcony with city views
- Contemporary open-plan living/kitchen area with integrated appliances
- Modern bathroom with stylish finishes
- Less than 0.2 miles from Uxbridge Tube Station
This charming one-bedroom apartment perfectly blends modern interiors with urban convenience, making it an ideal choice for professionals or first-time buyers. Enjoy bright, open-plan living with a sleek kitchen boasting an induction hob and stone worktop, complemented by a spacious balcony for morning coffee or evening relaxation. Located just steps from Uxbridge Town Centre, you'll have a plethora of shops, bars, and restaurants at your fingertips, along with excellent transport links for easy commuting into the city.
The property presents a great opportunity for those seeking a vibrant lifestyle in a multicultural, bustling area. While the service charge is £1,500 and the crime rate is noted as high, the perks of living in such a dynamic locality far outweigh the potential drawbacks. The property is also in good condition, but potential buyers should consider future maintenance needs associated with the leasehold tenure. Don't miss your chance to secure this desirable flat in a sought-after location—ideal for enjoying city living at a competitive price.
1 bedroom apartment for sale in Harefield Road, Uxbridge, UB8 — £270,000 • 1 bed • 1 bath • 580 ft²
Studio apartment for sale in Harefield Road, Uxbridge, UB8 — £239,995 • 1 bed • 1 bath • 431 ft²
1 bedroom apartment for sale in Westcombe House, 38 Windsor Street, Uxbridge, UB8 — £280,000 • 1 bed • 1 bath • 464 ft²
1 bedroom apartment for sale in Harefield Road, Uxbridge, UB8 — £320,000 • 1 bed • 1 bath • 593 ft²
1 bedroom apartment for sale in Panorama Apartments, Uxbridge, UB8 — £275,000 • 1 bed • 1 bath • 570 ft²
1 bedroom apartment for sale in Mercer Walk, Uxbridge, UB8 — £200,000 • 1 bed • 1 bath • 521 ft²


















































