**Standout Features:**
- Ideal for first-time buyers
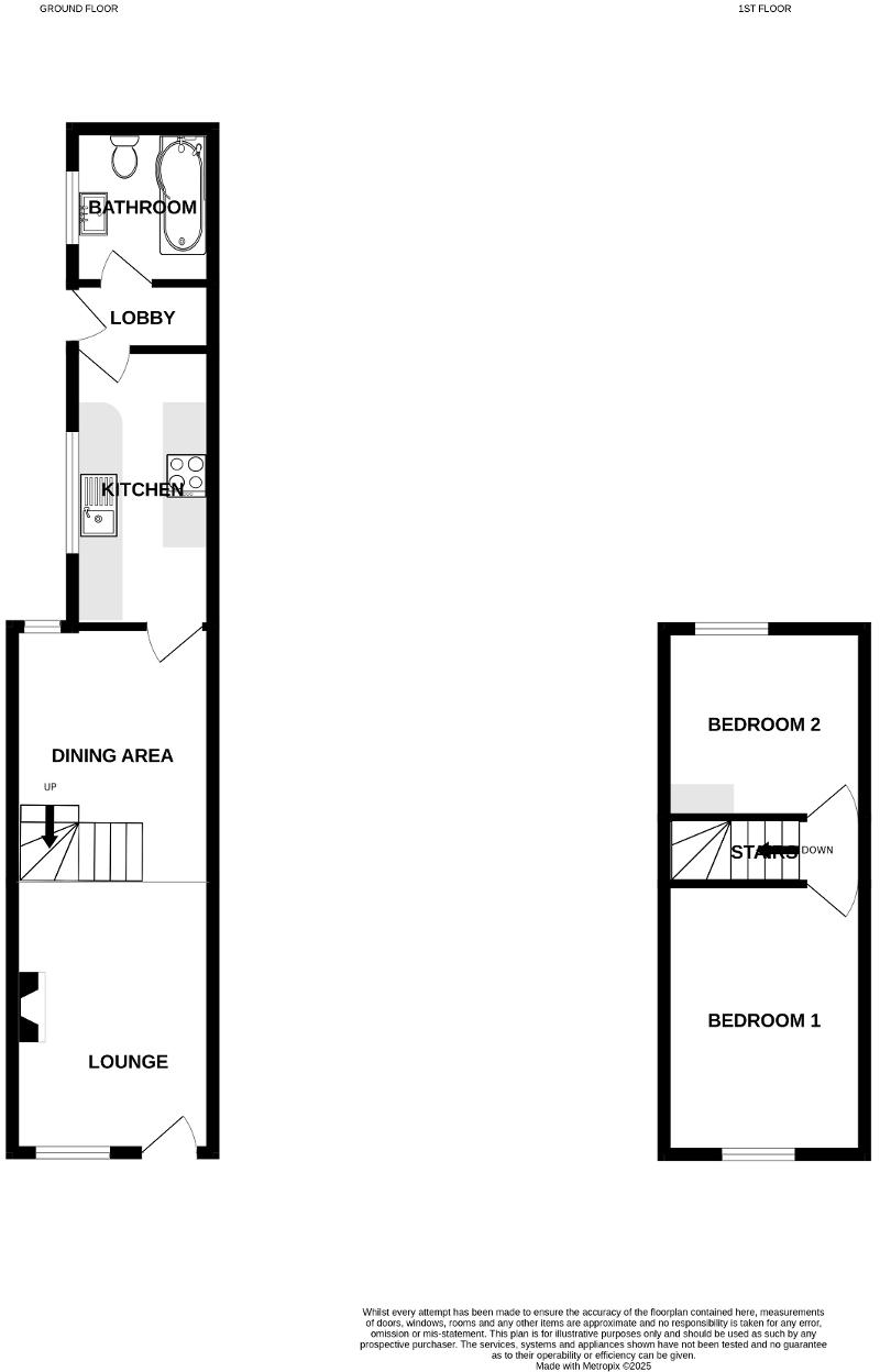
- Open plan lounge and dining area with a bay window
- Two double bedrooms
- Convenient ground floor bathroom
- Rear yard for outdoor space
- Chain-free sale
**Notable Concerns:**
- EPC rating: D
- Small plot size may limit outdoor opportunities
- Part of a neighborhood with high deprivation
Welcome to your perfect first home, a charming Victorian terraced property located in a convenient area just moments from local amenities and the town center. This cozy residence features an inviting open plan lounge and dining area complete with a bay window that fills the space with natural light. Enjoy the practicality of a ground floor bathroom and two generously sized double bedrooms upstairs. The galley kitchen offers ample fitted units, and the rear yard provides a lovely spot for relaxation.
With no onward chain, this property presents an excellent opportunity that won’t last long in the current market. While the area has a lower EPC rating of D and is classified as a hampered neighborhood, it offers great potential for renovation and personalization. Perfect for families and young professionals alike, take advantage of nearby schools with good and outstanding ratings. Viewing is highly recommended—don’t miss your chance to secure this affordable gem in ST1!
2 bedroom terraced house for sale in Austin Street, STOKE-ON-TRENT, Staffordshire, ST1 — £120,000 • 2 bed • 1 bath • 927 ft²
2 bedroom terraced house for sale in Werrington Road, Bucknall, Stoke On Trent, ST2 9AX, ST2 — £90,000 • 2 bed • 1 bath
2 bedroom terraced house for sale in Holder Street, Stoke-On-Trent ST1 5EB, ST1 — £80,000 • 2 bed • 1 bath • 625 ft²
2 bedroom terraced house for sale in Keary Street, Stoke-On-Trent ST4 4AS, ST4 — £90,000 • 2 bed • 1 bath
2 bedroom terraced house for sale in Manor Street, Fenton, Stoke-On-Trent, ST4 — £110,000 • 2 bed • 1 bath • 808 ft²
2 bedroom terraced house for sale in Northwood Park Road, Stoke-on-Trent, Staffordshire, ST1 — £110,000 • 2 bed • 1 bath • 776 ft²














































