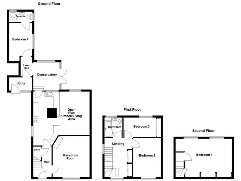
Four bedrooms across three floors, including ground-floor en suite bedroom
Newly renovated interior with open-plan kitchen/living and separate reception
Low-maintenance rear garden, summer house with power and bar
Off-street driveway parking for one or two cars
Leasehold tenure — buyers should check remaining term and service details
EPC rating D; double glazing dates pre-2002 — potential upgrade costs
Cavity walls assumed uninsulated — consider adding insulation for efficiency
Council Tax Band C; low local crime and good nearby primary schools
This extended four-bedroom semi-detached house on Oxford Drive offers flexible family living across three floors. The recently renovated interior centres on a bright open-plan kitchen/living area and a separate reception room with a wood-burning stove—comfortable, practical spaces for everyday family life and entertaining.
Ground-floor convenience includes a utility room, a bedroom with en suite shower room and a conservatory leading to a low-maintenance rear garden with a powered summer house and bar. Off-street parking to the front adds practical ease for families with multiple vehicles.
The property is leasehold and presents some energy and fabric considerations: its current EPC rating is D and the double glazing was installed before 2002. Wall construction is cavity with no confirmed insulation, so buyers should budget for potential improvements to insulation and glazing to reduce running costs and improve comfort.
Located in a low-crime, established suburban area close to several primary schools, this home suits families seeking a ready-to-live-in house with scope to improve energy performance. Tenure and EPC details are factual points to consider alongside the many renovated finishes and extra living spaces.
4 bedroom semi-detached house for sale in Brownhill Road, Blackburn, BB1 — £325,000 • 4 bed • 2 bath • 1544 ft²
4 bedroom semi-detached house for sale in Avondale Avenue, Blackburn, BB1 — £220,000 • 4 bed • 2 bath • 560 ft²
4 bedroom semi-detached house for sale in St. Helier Close, Blackburn, BB2 — £209,950 • 4 bed • 2 bath • 1066 ft²
4 bedroom semi-detached house for sale in Willow Trees Drive, Blackburn, Lancashire, BB1 — £330,000 • 4 bed • 1 bath • 1503 ft²
4 bedroom detached house for sale in Brookview Close, Blackburn, BB1 — £285,000 • 4 bed • 2 bath • 1163 ft²
4 bedroom semi-detached house for sale in Emily Street, Blackburn, Lancashire, BB1 — £235,000 • 4 bed • 2 bath • 1308 ft²


















































































































































































































