Affordable, low-maintenance home or rental in a well-connected area.
Second-floor modern apartment with Juliet-style balcony
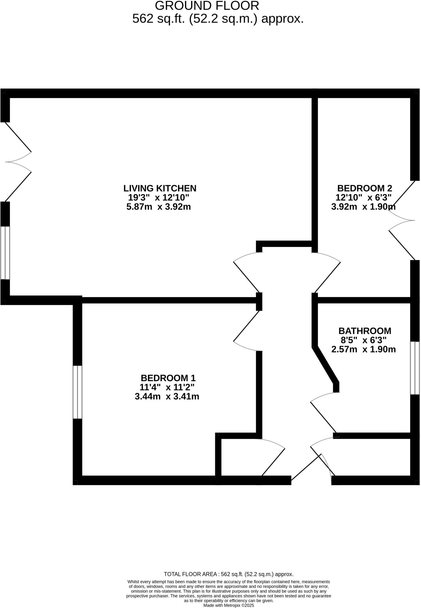
Set on the second floor of a modern small block, this two-bedroom apartment offers a compact, low-maintenance home or rental opportunity priced at £95,000. The open-plan living/kitchen with light oak units and Juliet balcony creates a bright social space, and both bedrooms are good-sized for the apartment’s overall footprint. Practical features include double glazing, a security alarm and an allocated parking space, with a communal garden to the rear.
The lease is secure (around 110 years remaining) and running costs are predictable: a monthly service charge and a modest ground rent apply. Council tax sits at Band A, helping keep ongoing outgoings low. Broadband and mobile reception are strong, supporting remote working or streaming tenants.
Buyers should note material downsides plainly: the area records higher-than-average crime and sits in a deprived ward, which may affect insurance and resale demand. The apartment is small (approx. 562 sq ft) and therefore best suited to first-time buyers, downsizers comfortable with compact living, or investors targeting local rental demand rather than premium yields.
Overall, this apartment offers a straightforward move-in condition with modern fixtures and sensible running costs. It represents an accessible entry on to the ladder or a manageable addition to a rental portfolio, but buyers should balance the low price against local area challenges before viewing.
1 bedroom apartment for sale in Beechfield Court, Grimsby, DN34 — £89,950 • 1 bed • 1 bath • 498 ft²
2 bedroom apartment for sale in Maegan Way, Cleethorpes, Lincolnshire, DN35 — £105,000 • 2 bed • 1 bath • 582 ft²
2 bedroom apartment for sale in Hope House, Hope Street, Grimsby, DN32 — £45,000 • 2 bed • 1 bath • 797 ft²
2 bedroom apartment for sale in Ravenspurn Way, Grimsby, Lincolnshire, DN31 — £65,000 • 2 bed • 1 bath • 603 ft²
2 bedroom apartment for sale in Sorrel Road, Grimsby, DN34 — £120,000 • 2 bed • 1 bath • 778 ft²
2 bedroom apartment for sale in Thorgam Court, Grimsby DN31 — £39,000 • 2 bed • 1 bath • 636 ft²














































