**Standout Features:**
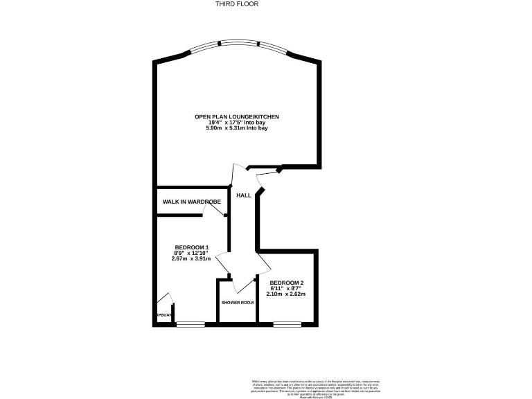
- Two-bedroom third-floor flat in a converted Grade II listed building
- Spectacular direct sea views from open-plan lounge/kitchen
- Share of freehold with 999 years remaining on the lease
- No ongoing chain for quick possession
- Located in a sought-after historic seafront square
- Total living space of 511 sq ft
**Potential Concerns:**
- The property may require modernization
- The building's listed status could complicate renovation plans
- High local crime rate
This charming two-bedroom flat in a converted Grade II listed building offers a unique seaside living experience with stunning views of the Brighton coastline and the i360. Nestled in a vibrant and cosmopolitan neighborhood, this property features an open-plan lounge and kitchen that basks in natural light while overlooking the tranquil sea—a perfect setting for relaxation or entertaining guests. The bedrooms provide comfy, functional spaces with ample potential for personalization.
The property is chain-free, making it an attractive option for first-time buyers or investors looking to capitalize on Brighton's thriving rental market. However, be aware that the interior may require some modernization, and the property's listed status could limit future renovation options. Despite these considerations, the flat's location in a sought-after seafront square ensures easy access to local amenities, schools, and leisure activities, making it an excellent choice for those looking for a blend of seaside fun and urban living. Don’t miss out on this opportunity to own a slice of Brighton's history—with this flat's desirability and unique characteristics, it won't last long!
 2 bedroom flat for sale in Lower Rock Gardens, BN2 — £250,000 • 2 bed • 1 bath • 437 ft²
 2 bedroom flat for sale in Lower Rock Gardens, BN2 — £250,000 • 2 bed • 1 bath • 437 ft² 2 bedroom apartment for sale in Regency Square, Brighton, East Sussex, BN1 — £500,000 • 2 bed • 1 bath • 1103 ft²
 2 bedroom apartment for sale in Regency Square, Brighton, East Sussex, BN1 — £500,000 • 2 bed • 1 bath • 1103 ft² 1 bedroom apartment for sale in Regency Square, Brighton, BN1 — £250,000 • 1 bed • 1 bath • 584 ft²
 1 bedroom apartment for sale in Regency Square, Brighton, BN1 — £250,000 • 1 bed • 1 bath • 584 ft² 2 bedroom apartment for sale in Eaton Place, Brighton, BN2 — £300,000 • 2 bed • 1 bath • 757 ft²
 2 bedroom apartment for sale in Eaton Place, Brighton, BN2 — £300,000 • 2 bed • 1 bath • 757 ft² 2 bedroom apartment for sale in Montpelier Place, Brighton, BN1 — £325,000 • 2 bed • 1 bath • 576 ft²
 2 bedroom apartment for sale in Montpelier Place, Brighton, BN1 — £325,000 • 2 bed • 1 bath • 576 ft² 2 bedroom flat for sale in Regency Square, Brighton, East Sussex, BN1 — £425,000 • 2 bed • 1 bath • 646 ft²
 2 bedroom flat for sale in Regency Square, Brighton, East Sussex, BN1 — £425,000 • 2 bed • 1 bath • 646 ft²






































