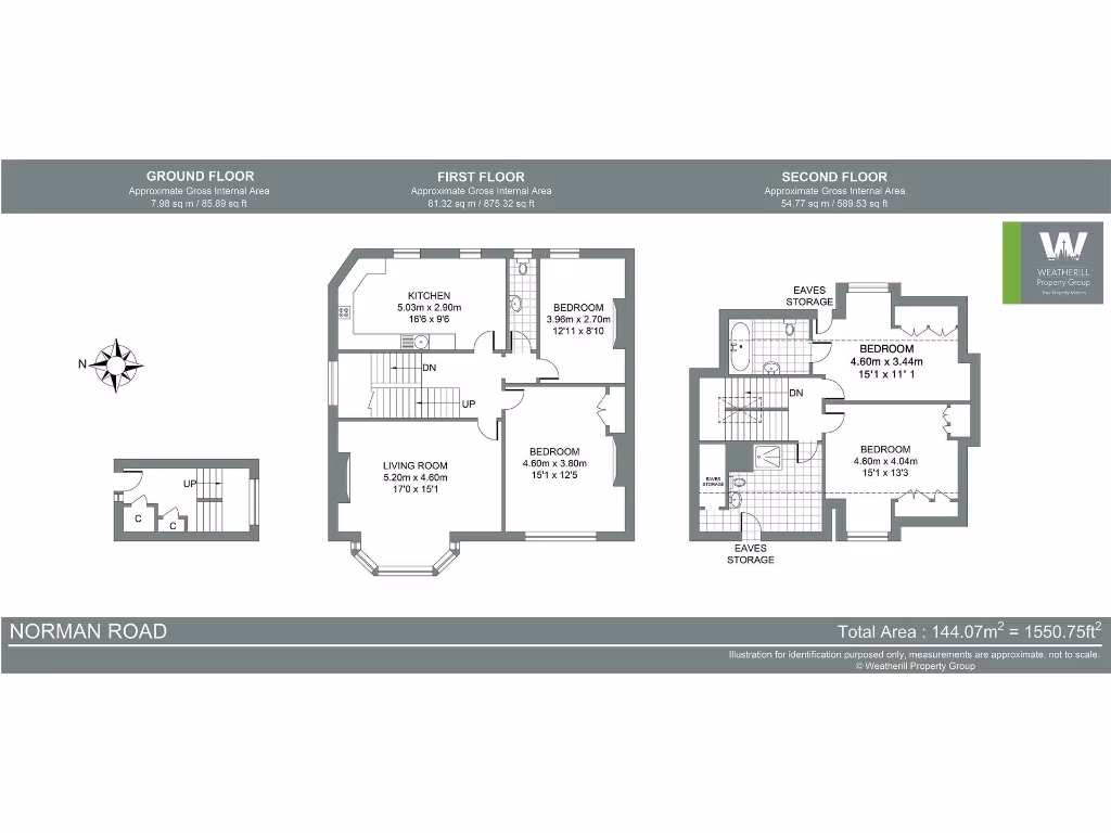
Four-bedroom, three-floor home by Hove Lagoon and the promenade.
- West-facing reception room with bay window and sea views
- Four bedrooms across ground, first and second floors
- Family-sized eat-in kitchen with contemporary fittings
- Private street entrance; no communal hallway
- Leasehold with 200 years remaining; ground rent £150
- Small forecourt only; no substantial rear garden
- Cavity walls likely uninsulated; double glazing pre-2002
- Presented in good decorative order with period features
Set across three floors with a private street entrance, this four-bedroom maisonette delivers the feel of a house close to Hove’s rejuvenated seafront. The west-facing reception room catches afternoon light and offers bay-window sea views; high ceilings, mouldings and an elegant stairwell retain strong Victorian character.
A family-sized, eat-in kitchen and bright dining areas suit everyday family life, while the layout’s generous circulation and 1,551 sq ft provide genuine versatility for families or buy-to-let investors. The property is presented in good decorative order and combines original period features with a modern fitted kitchen.
Practical points to note: the property is leasehold (200 years remaining) with a small annual ground rent of £150, and there’s only a small forecourt — no substantial rear garden. Cavity walls appear uninsulated and the double glazing was installed before 2002, so heating efficiency could be improved.
Ideally located between Wish Park and Hove Lagoon, the home is within easy reach of water-sport clubs, cafés, parks, padel and tennis courts, quality local schools and excellent transport links. This is a rare opportunity to secure a spacious, characterful home by the sea with immediate local amenities.
1 bedroom flat for sale in Kingsway, Hove, BN3 — £275,000 • 1 bed • 1 bath • 437 ft²
4 bedroom apartment for sale in Charlotte Street, Brighton, BN2 — £500,000 • 4 bed • 3 bath • 1139 ft²
3 bedroom maisonette for sale in Salisbury Road, Hove, BN3 — £500,000 • 3 bed • 2 bath • 1395 ft²
4 bedroom maisonette for sale in Lansdowne Street, Hove, BN3 — £1,000,000 • 4 bed • 2 bath • 1615 ft²
2 bedroom apartment for sale in Kingsway, Hove, BN3 — £425,000 • 2 bed • 2 bath • 867 ft²
5 bedroom maisonette for sale in Clarendon Villas, Hove, BN3 — £650,000 • 5 bed • 2 bath • 1896 ft²


























































































