**Standout Features:**
- Two spacious building plots totaling over ½ acre
- Planning permission granted for two modern homes (P/01577/17)
- Off-street parking and driveway availability
- Quiet, sought-after rural location with stunning southwest-facing countryside views
- Close proximity to Cowes and excellent local transport links
- Surrounded by mature trees and natural hedging
**Potential Concerns:**
- No current services connected to the plots; mains services are nearby
- Subject to a Section 106 Agreement for development
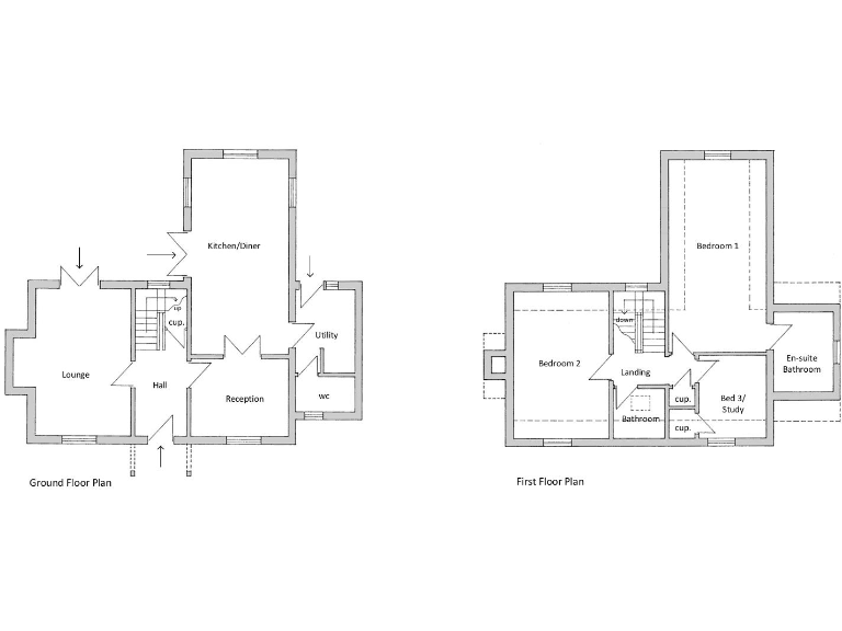
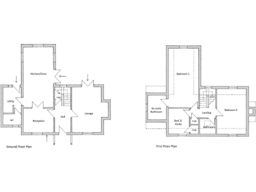
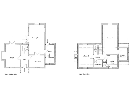
Discover a remarkable opportunity to secure two building plots in a tranquil countryside setting, ideally located just five minutes from Cowes. The expansive area, bordered by mature trees, is perfect for creating your dream home while enjoying breathtaking views and outdoor space. Each proposed residence features a spacious layout including three bedrooms, an open-plan kitchen and dining space, and generous living areas—perfect for families. Both plots enjoy the benefit of extant planning permissions, ensuring a smooth development process.
With off-road parking, quick access to local amenities, and a vibrant nearby sailing community, these plots guarantee a comfortable, active lifestyle infused with nature. This unique offering represents a rare chance to build in a peaceful yet connected location, making it ideal for investors or families seeking to create their serene retreat. Don’t miss out on the chance to visualize your future in this pristine environment—act quickly before this exclusive opportunity slips away!
Plot for sale in Newport Road, Cowes, PO31 — £155,000 • 1 bed • 1 bath • 1077 ft²
Plot for sale in Gatehouse Road, Upton, PO33 — £395,000 • 3 bed • 2 bath • 2584 ft²
Plot for sale in East Cowes, PO32 — £150,000 • 1 bed • 1 bath • 1271 ft²
Plot for sale in St. Helens, Isle of Wight, PO33 — £245,000 • 1 bed • 1 bath • 2314 ft²
Plot for sale in St. Helens, Isle of Wight, PO33 — £490,000 • 1 bed • 1 bath • 2303 ft²
Plot for sale in Moor Lane, Brighstone, PO30 — £1,275,000 • 1 bed • 1 bath • 1250 ft²






































