Easy single‑level living with garage and conservatory.
Chain free sale for a quicker exchange
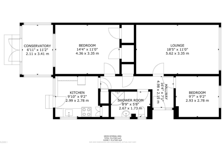
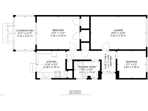
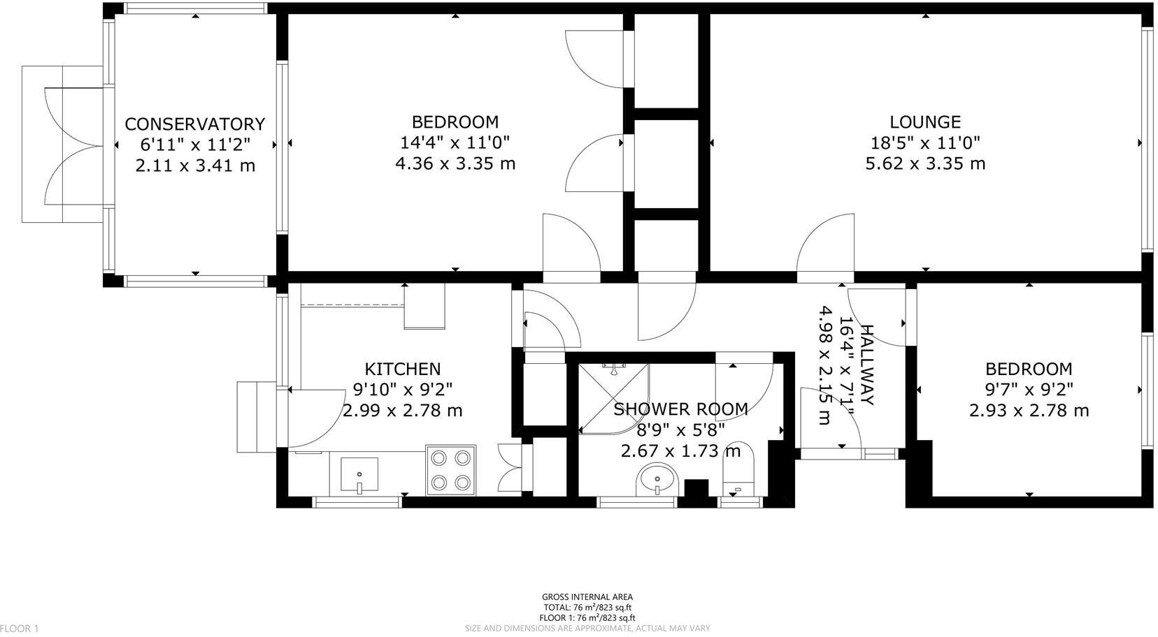
Set on a quiet Elm Green street, this semi‑detached 1960s bungalow offers single‑level living with practical space and low upkeep. Two double bedrooms flank a generous lounge and conservatory, creating comfortable daytime and visitor areas. The attached garage and driveway add convenient parking.
The kitchen is well appointed for everyday use and the shower room is functional; gas central heating and uPVC double glazing provide reliable warmth and insulation. The rear garden is designed for low maintenance, ideal for those who prefer outdoor space without heavy gardening.
Chain free and positioned within walking distance of the town centre and local bus route, the property suits downsizers or buyers seeking an easy, independent home. Note the property sits in a mainly ageing suburban area and broadband speeds are slow, which may affect home working. Overall, this bungalow balances straightforward, comfortable living with scope to modernise to personal taste.
2 bedroom semi-detached bungalow for sale in Oldfield Crescent, Hailsham, BN27 — £289,950 • 2 bed • 1 bath • 751 ft²
2 bedroom semi-detached bungalow for sale in Derwent Close, Hailsham, BN27 — £260,000 • 2 bed • 1 bath • 721 ft²
2 bedroom semi-detached bungalow for sale in Stoney Lane, Hailsham, BN27 — £275,000 • 2 bed • 1 bath • 678 ft²
2 bedroom detached bungalow for sale in Cacklebury Close, Hailsham, BN27 — £275,000 • 2 bed • 1 bath • 695 ft²
2 bedroom detached bungalow for sale in Woodpecker Drive, Hailsham, BN27 — £375,000 • 2 bed • 1 bath • 775 ft²
2 bedroom semi-detached bungalow for sale in Danum Close, Hailsham, BN27 — £275,000 • 2 bed • 1 bath • 773 ft²


























































































