**Standout Features:**
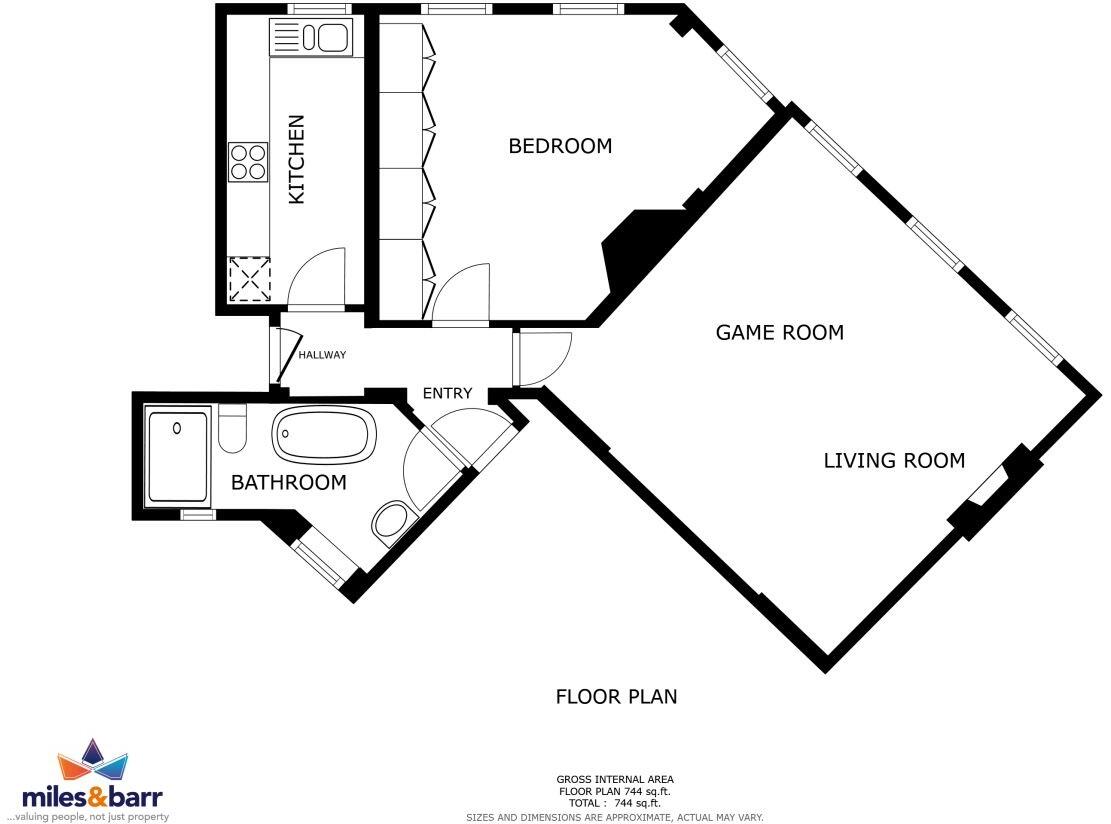
- Spacious 1-bedroom apartment with stunning sea views
- Generous master bedroom with built-in wardrobes and dressing area
- Luxurious bathroom with underfloor heating and free-standing roll-top bath
- Chain-free sale offers immediate occupancy
- Peaceful residential location near local amenities and attractions
- Approx. 744 sq ft of practical living space
**Potential Downsides:**
- Leasehold property with associated ground rent (£55)
- Older construction (pre-1900) may have certain maintenance considerations
- No insulation in walls (assumed)
Discover coastal living at its finest in this beautifully presented, chain-free 1-bedroom apartment in the desirable Goodwin Court. Boasting breathtaking sea views and an expansive front room with large windows, this home is ideal for those seeking tranquility and natural light. The generously sized master bedroom features built-in wardrobes and a separate dressing area, while the luxurious bathroom offers modern amenities, including underfloor heating and a stunning roll-top bath.
Located at the intersection of Leicester and Palm Bay Avenues, this apartment is just a stroll from the picturesque Botany Bay and the vibrant attractions of Margate, making it a perfect fit for first-time buyers or investors. With a peaceful atmosphere and local amenities just minutes away, don't miss this rare opportunity to own a unique property—schedule your viewing today!
 2 bedroom flat for sale in Palm Bay Court, Palm Bay Avenue, Margate, CT9 — £325,000 • 2 bed • 2 bath • 710 ft²
 2 bedroom flat for sale in Palm Bay Court, Palm Bay Avenue, Margate, CT9 — £325,000 • 2 bed • 2 bath • 710 ft² 1 bedroom flat for sale in Leicester Avenue, Margate, Cliftonville, CT9 — £150,000 • 1 bed • 1 bath • 548 ft²
 1 bedroom flat for sale in Leicester Avenue, Margate, Cliftonville, CT9 — £150,000 • 1 bed • 1 bath • 548 ft² 1 bedroom flat for sale in Beresford Gardens, Palm Bay, Margate, Kent, CT9 — £190,000 • 1 bed • 1 bath • 581 ft²
 1 bedroom flat for sale in Beresford Gardens, Palm Bay, Margate, Kent, CT9 — £190,000 • 1 bed • 1 bath • 581 ft² 2 bedroom apartment for sale in Eastern Esplanade, Cliftonville, Margate, Kent, CT9 — £250,000 • 2 bed • 1 bath • 786 ft²
 2 bedroom apartment for sale in Eastern Esplanade, Cliftonville, Margate, Kent, CT9 — £250,000 • 2 bed • 1 bath • 786 ft² 1 bedroom flat for sale in Ethelbert Crescent, Margate, CT9 — £175,000 • 1 bed • 1 bath • 634 ft²
 1 bedroom flat for sale in Ethelbert Crescent, Margate, CT9 — £175,000 • 1 bed • 1 bath • 634 ft² 1 bedroom flat for sale in Northumberland Avenue, Margate, CT9 — £120,000 • 1 bed • 1 bath • 699 ft²
 1 bedroom flat for sale in Northumberland Avenue, Margate, CT9 — £120,000 • 1 bed • 1 bath • 699 ft²


























































