Spacious single‑storey barn conversion with vaulted living and private gardens.
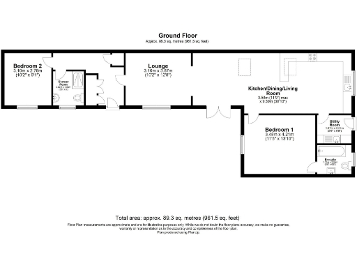
Vaulted open-plan kitchen/dining/living with exposed beams and Velux windows
Two double bedrooms, master with en-suite and family bathroom
Approaching 1,000 sq ft of single-storey accommodation
Private gravel side courtyard and enclosed rear lawned garden
No upward chain — ready for a quick transaction
Medium flood risk — property lies in a flood-prone area
On-street parking only; no private driveway provided
High council tax band; running costs likely above average
Set back from Bassingbourn High Street, this barn-style bungalow offers nearly 1,000 sq ft of well-presented living with vaulted ceilings and an open-plan kitchen/dining/living area. The property has been updated to a high specification with exposed beams, Velux windows, granite worktops and integrated appliances, creating a bright, contemporary feel while retaining rustic character.
Accommodation comprises two double bedrooms, a master en-suite and a family bathroom — both with heated towel rails — plus a separate lounge and useful utility room. French doors open from the main living space to a private gravel courtyard; the rear lawned garden has established borders, a large shed and plenty of space for outdoor furniture.
Practical positives include double glazing, a relatively recent build/convert date, no upward chain and ample on-street parking. Note some material factors: the property is in a medium flood‑risk zone and sits in a high council tax band. On-street parking only — there’s no private driveway included.
This home will suit downsizers or buyers wanting single‑storey, low‑maintenance living in a village location with quick access to Royston and good transport links to Cambridge and London. Internal viewing is recommended to appreciate the scale and vaulted living space.
5 bedroom detached house for sale in Chestnut Lane, Bassingbourn, SG8 — £900,000 • 5 bed • 2 bath • 1904 ft²
5 bedroom detached house for sale in Old North Road, Bassingbourn, SG8 — £700,000 • 5 bed • 2 bath • 2021 ft²
3 bedroom detached bungalow for sale in Old North Road, Bassingbourn, SG8 — £575,000 • 3 bed • 2 bath • 1208 ft²
4 bedroom semi-detached house for sale in Elbourn Way, Bassingbourn, SG8 — £510,000 • 4 bed • 2 bath • 1416 ft²
4 bedroom barn conversion for sale in Old North Road, Bassingbourn, SG8 — £600,000 • 4 bed • 2 bath • 1539 ft²
4 bedroom detached house for sale in South End, Bassingbourn, SG8 — £725,000 • 4 bed • 2 bath • 1766 ft²














































































