Spacious, practical home in a popular village close to Canterbury and schools.
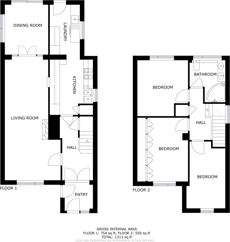
Three bedrooms with family bathroom (one bath/shower room only)
New gas boiler fitted in 2025
Garage plus driveway parking for multiple vehicles
Good-sized northwest-facing rear garden
Separate utility area and useful porch with WC
Large internal area ~1,313 sq ft, practical family layout
Double glazing fitted pre-2002; may need window upgrades
Slow local broadband speeds
This three-bedroom family home in Littlebourne offers roomy, practical accommodation across roughly 1,313 sq ft with a generous plot and established front and rear gardens. The layout includes a porch with WC, bright living room, kitchen with separate utility area, and three well-proportioned bedrooms served by a single family bathroom — a straightforward plan that suits everyday family life.
Practical strengths include a recently fitted boiler (2025), garage plus driveway parking for multiple cars, and a good-sized northwest-facing rear garden that provides outdoor space for children and entertaining. The property is freehold, set in a popular village with good local schools, low crime and convenient access to Canterbury and nearby transport links.
Known limitations are clear and factual: there is only one bathroom for three bedrooms, broadband speeds in the area are slow, and the double glazing was installed before 2002 (older windows may need attention). Council tax is moderate. Overall, the house presents a comfortable, well-located family home with sensible upkeep and modest updating opportunities.
4 bedroom detached house for sale in Jubilee Road, Littlebourne, Canterbury, CT3 — £495,000 • 4 bed • 1 bath • 1300 ft²
3 bedroom detached house for sale in Jubilee Road, Littlebourne, Canterbury, Kent, CT3 — £425,000 • 3 bed • 1 bath • 1163 ft²
3 bedroom bungalow for sale in The Hill, Littlebourne, Canterbury, Kent, CT3 — £525,000 • 3 bed • 2 bath • 1485 ft²
5 bedroom house for sale in School Path, Littlebourne, Canterbury, CT3 — £1,300,000 • 5 bed • 3 bath • 4168 ft²
3 bedroom detached house for sale in Nackington Road, Canterbury, Kent, CT1 — £425,000 • 3 bed • 2 bath • 1165 ft²
3 bedroom terraced house for sale in Court Hill, Littlebourne, Canterbury, CT3 — £300,000 • 3 bed • 1 bath • 851 ft²






























































