Ideal first-time purchase near parks and quick links to the city.
- Recently renovated: new boiler, windows, radiators, kitchen and bathroom
- Two double bedrooms both with fitted wardrobes
- Principal bedroom with en-suite shower room
- Fitted integrated kitchen with appliances included
- Gas central heating, double glazing, audio door entry
- Resident's off-street parking and communal gardens/drying green
- Council tax above average; area recorded as very deprived
- Service/maintenance managed by a company — communal charges likely
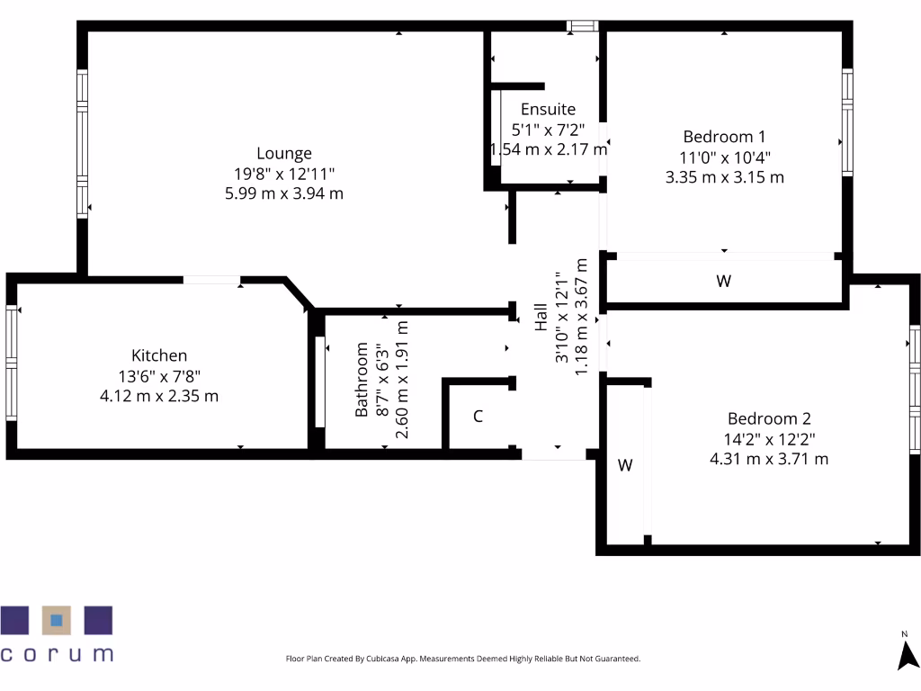
This recently renovated first-floor flat offers a ready-to-move-in option for buyers seeking a low-maintenance starter property. Upgrades since 2019 include a new boiler, windows, radiators, fitted kitchen and bathroom — improvements that should minimise immediate maintenance costs. The layout includes a main lounge with dining space, fitted kitchen with integrated appliances, two double bedrooms with fitted wardrobes, a principal en-suite and a main three-piece bathroom.
Practical features include gas central heating, double glazing, an audio door entry system and resident parking to the front of the building. The development has communal gardens, a drying green and covered bin storage; grounds and maintenance are managed by a third-party company which implies regular service charges for communal upkeep. Energy Efficiency Rating is Band C.
Location is a strong selling point for city commuters and leisure-minded buyers: the flat is around one mile from local shops and cafés on Nithsdale Road/Kildrostan Street, close to Maxwell Park and Pollok Country Park, and within walking distance of Maxwell Park station and Shields Road underground. The nearby M77 provides quick road links across the Southside and beyond.
Be aware of a few material considerations: the property sits in an area recorded as very deprived and council tax is above average. On-street and communal parking is available but limited, and external communal spaces are modest. Buyers wanting private garden space or a rural setting may find this development constrained.
2 bedroom flat for sale in Bemersyde Avenue, Mansewood, G43 — £149,000 • 2 bed • 2 bath • 691 ft²
2 bedroom flat for sale in Flat 5/1, 29 Barrland Street, Glasgow, G41 — £159,000 • 2 bed • 2 bath • 798 ft²
2 bedroom flat for sale in 11 Auldburn Place, Flat 0/2, Pollokshaws, Glasgow, G43 1JU, G43 — £99,000 • 2 bed • 1 bath • 645 ft²
2 bedroom flat for sale in Springfield Gardens, Parkhead, G31 4HS, G31 — £135,000 • 2 bed • 2 bath • 639 ft²
2 bedroom flat for sale in Rigby Drive, Glasgow, G32 — £115,000 • 2 bed • 1 bath • 610 ft²
2 bedroom flat for sale in 4E Pollokshields Square, Pollokshields, G41 4QT, G41 — £240,000 • 2 bed • 1 bath • 925 ft²






































































































