**Standout Features:**
- **Modern Georgian-inspired townhouse** with 3 bedrooms and 2 ensuites.
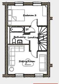
- **Spacious 1285 sq. ft.** layout spread over three floors, including an expansive open-plan kitchen/diner/family room.
- **Stylish finishes** with upgraded worktops, fitted wardrobes, and integrated appliances.
- **Communal amenities** such as a children’s play area, primary school, library, and access to 325 acres of parklands.
- **Excellent transport links** to M1 and M6, with good local schools rated 'Good' by Ofsted.
**Potential Concerns:**
- **High crime rates** in the local area.
- **Slow broadband speeds**, which may impact remote workers.
- **Annual management fee** of approximately £250.
Discover comfort and community in this modern 3-bedroom townhouse in the thriving Market Village of New Lubbesthorpe. The striking Georgian-inspired design impresses with its charming brick exterior and sash windows, while the spacious layout over three levels offers flexibility for family living. Enjoy entertaining in a light-filled open-plan kitchen-diner that seamlessly connects to the garden—ideal for summer gatherings.
This property not only boasts contemporary elegance with its top-of-the-line kitchen and upgraded finishes but also provides peace of mind with a 10-year NHBC warranty. Benefit from the nearby amenities, excellent primary schools, and vast green spaces that foster a strong sense of community—perfect for families or first-time buyers.
While crime rates in the area are a consideration, the attractive, well-planned neighborhood and convenient transport links make this home a compelling choice. Don’t miss this opportunity to be part of a modern, vibrant community—where you can truly feel at home.
3 bedroom semi-detached house for sale in New Lubbesthorpe
Off Dee Way,
New Lubbesthorpe,
Leicestershire,
LE19 — £374,995 • 3 bed • 1 bath
4 bedroom detached house for sale in New Lubbesthorpe
Off Dee Way,
New Lubbesthorpe,
Leicestershire,
LE19 — £449,995 • 4 bed • 1 bath
3 bedroom semi-detached house for sale in New Lubbesthorpe
Off Dee Way,
New Lubbesthorpe,
Leicestershire,
LE19 — £349,995 • 3 bed • 1 bath
3 bedroom detached house for sale in Arnesby Road,
Fleckney,
Leicester,
LE8 8AQ, LE8 — £364,995 • 3 bed • 1 bath
3 bedroom detached house for sale in The Burrows
Off Dee Way
New Lubbesthorpe
Leicestershire
LE19 0LF, LE19 — £389,995 • 3 bed • 1 bath • 1020 ft²
3 bedroom detached house for sale in The Burrows
Off Dee Way
New Lubbesthorpe
Leicestershire
LE19 0LF, LE19 — £374,995 • 3 bed • 1 bath • 1001 ft²






































































