EX1 2FG - 1 bedroom apartment for sale in Red Lion Lane, Exeter, EX1

View on Property Piper

1 bedroom apartment for sale in Red Lion Lane, Exeter, EX1

Summary - WHEATON HOUSE 5 RED LION LANE EXETER EX1 2FG

1 bed 1 bath Apartment

**Standout Features:**
- Modern ground-floor one-bedroom apartment.
- Open-plan living area with abundant natural light.
- French doors leading to a charming south-facing Juliette balcony.
- Contemporary kitchen with integrated appliances.
- Leasehold with 109 years remaining; service charge at £738/year.
- Low council tax band A; excellent mobile and broadband connectivity.

**Key Details:**
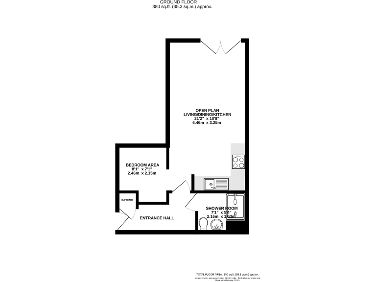
This modern ground-floor one-bedroom apartment offers an ideal investment opportunity in the vibrant heart of Exeter. With an efficient open-plan layout, the living space is complemented by a stylish kitchen featuring modern units and appliances, perfect for entertaining. The separate sleeping zone, delineated by a half-height wall, allows for a cozy and inviting atmosphere, while the French doors that lead to a Juliette balcony invite in plenty of natural light.

While the apartment's overall size is compact at 380 sq ft, its contemporary design and condition offer low-maintenance living, making it suitable for singles or couples. The surrounding cosmopolitan neighborhood provides quick access to amenities, appealing to students and young professionals alike, although prospective buyers should note the high crime rate in the area. With an attractive price point of £130,000, this property presents a unique opportunity for first-time buyers or investors looking to tap into Exeter's rental market. Don't miss the chance to secure this exclusive residence in a desirable urban location!

Property Details

Brochure Descriptions

Image Descriptions

Rooms

Textual Property Features

Detected Visual Features

EPC Details

Nearby Schools

Nearest Bars And Restaurants

,,,,}

Nearest General Shops

,,}

Nearest Grocery shops

,,}

Nearest Supermarkets

,,}

Nearest Religious buildings

,,}

Nearest Medical buildings

,,,}

Nearest Airports

}

Nearest Leisure Facilities

,,,,}

Nearest Tourist attractions

,,}

Nearest Train stations

,,,,}

Nearest Bus stations and stops

,,,,}

Nearest Hotels

,,}

Tags

Local Market Stats

AirBnB Data

Similar Properties

Meta

High Res Images

Compatible Images

Low res Images

Thumbnails

Raw Images

High Res Floorplan Images

Compatible Floorplan Images

Low res Floorplan Images

FloorplanImages Thumbnail

Raw Floorplan Images