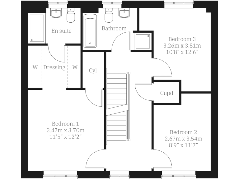
Spacious plot and contemporary layout for growing families in Curbridge.
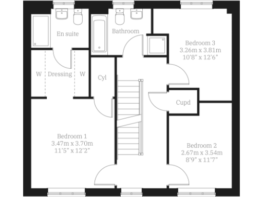
- Five bedrooms across three storeys, useful bedroom mix
- Open-plan kitchen/dining/family room with garden access
- Separate front-aspect living room gives flexible living space
- Utility room and downstairs WC for practical family use
- Very large plot and private garden; single garage parking
- Compact overall internal size (~645 sq ft) for five-bed
- Only one bathroom; likely need for additional facilities
- Local crime reported above average; visit to assess safety
This new-build five-bedroom detached house sits on a very large plot in Curbridge, offering a modern layout and low-maintenance finishes suited to growing families. The ground floor features a spacious L-shaped open-plan kitchen/dining/family room with bifold potential and a separate front-aspect living room, plus a utility room and downstairs WC for everyday convenience. Private outdoor space and a single garage provide parking and garden enjoyment on a substantial plot.
Buyers should note the property’s compact total internal area (approximately 645 sq ft), unusually small for a five-bedroom home, and only one bathroom is provided, which will affect busy households and could require reconfiguration or extension. Crime levels in the locality are reported as above average; buyers wanting maximum tranquillity should visit at different times to assess the area.
The home is freehold and newly constructed, so it benefits from contemporary build standards, fast broadband and excellent mobile signal, reducing immediate maintenance needs. The setting in a village within an affluent, semi-rural area suits purchasers seeking a modern family home with countryside access, and there is potential to enhance value by reworking internal arrangements or adding an extra bathroom if planning permits.
Overall this property will appeal to family buyers who prioritise modern layout, garden and parking on a large plot, but those requiring generous internal floor area or multiple bathrooms should consider the spatial limitations before viewing.
5 bedroom detached house for sale in Curbridge Way,
Curbridge,
Southampton,
SO30 2HN, SO30 — £640,000 • 5 bed • 1 bath • 645 ft²
3 bedroom detached house for sale in Curbridge Way,
Curbridge,
Southampton,
SO30 2HN, SO30 — £445,000 • 3 bed • 1 bath • 617 ft²
5 bedroom detached house for sale in Curbridge Way,
Curbridge,
Southampton,
SO30 2HN, SO30 — £620,000 • 5 bed • 1 bath • 1702 ft²
3 bedroom detached house for sale in Curbridge Way,
Curbridge,
Southampton,
SO30 2HN, SO30 — £445,000 • 3 bed • 1 bath • 617 ft²
4 bedroom detached house for sale in Curbridge Way,
Curbridge,
Southampton,
SO30 2HN, SO30 — £610,000 • 4 bed • 1 bath • 1206 ft²
3 bedroom detached house for sale in Curbridge Way,
Curbridge,
Southampton,
SO30 2HN, SO30 — £440,000 • 3 bed • 1 bath • 370 ft²






















































































