**Standout Features:**
- Modern, new build flat in vibrant Vauxhall, SE11
- Spacious one-bedroom unit with open-plan layout and large windows
- Up to 2.7-metre high ceilings providing an airy atmosphere
- Private garden access and winter gardens for outdoor living
- Excellent panoramic views of the city
- Strong investment potential in a prime location with fast transport links
**Potential Concerns:**
- Leasehold tenure may require future buyers to pay additional fees
- Area classification indicates some socio-economic challenges
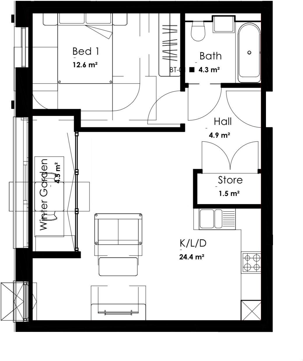
Embrace a sophisticated urban lifestyle in this modern one-bedroom flat located within the new Graphite Square development in the heart of Vauxhall. Offering an impressive 631 square feet of contemporary living space, this apartment features generous open-plan areas illuminated by large windows, creating an ambiance filled with natural light. Enjoy high ceilings up to 2.7 metres that amplify the sense of space and comfort, while your own private garden complements this home's indoor-outdoor flow.
Situated just moments from the iconic River Thames, residents will benefit from excellent transport connectivity to London's finest cultural and entertainment venues. Surrounding amenities include a vibrant mix of dining, shopping, and leisure facilities, ensuring every convenience is at your doorstep.
With a strong potential for future value appreciation and flexible renovation options, this flat could be a perfect first home or an investment opportunity in a cosmopolitan area experiencing growth. Don’t miss out on this exclusive chance to own a piece of modern living in one of London's most dynamic neighborhoods!
2 bedroom flat for sale in Graphite Square,
Albert Embankment, SE11 — £895,000 • 2 bed • 2 bath • 859 ft²
3 bedroom flat for sale in Graphite Square,
Albert Embankment, SE11 — £2,450,000 • 3 bed • 2 bath • 1395 ft²
2 bedroom flat for sale in Graphite Square,
Albert Embankment, SE11 — £1,295,000 • 2 bed • 2 bath • 1144 ft²
2 bedroom flat for sale in Graphite Square,
Albert Embankment, SE11 — £945,000 • 2 bed • 2 bath • 816 ft²
1 bedroom flat for sale in Graphite Square,
Albert Embankment, SE11 — £600,000 • 1 bed • 1 bath • 631 ft²
1 bedroom flat for sale in Graphite Square,
Albert Embankment, SE11 — £550,000 • 1 bed • 1 bath • 439 ft²






































































