Bright extended family townhouse with garage, garden and bi-fold doors.
Four bedrooms across three stories with spacious master and en-suite
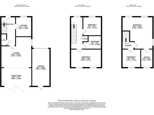
A skillfully extended four-bedroom semi-detached townhouse in Mickleover, offering comfortable family living across three stories. The extended dining area with bi-fold doors creates a flexible entertaining space that flows onto a low-maintenance rear garden. The generous master suite on the second floor includes an en-suite; three further bedrooms and a family bathroom suit typical family routines.
Practicalities are well covered: a private garage with power and lighting, driveway parking for multiple vehicles, gas central heating and an overall modern finish throughout. The ground-floor lounge is bright and the contemporary kitchen provides functional work surfaces and modern appliances, though it is on the smaller side compared with the reception rooms.
Location is a key asset — close to local schools, amenities, and within easy reach of Derby Hospital. Note the property sits on a relatively small plot and the neighbourhood records above-average crime levels, which may matter to some buyers. Council Tax band C and freehold tenure add clear ownership and running-cost benefits.
This home will suit growing families seeking a contemporary, low-upkeep property in a sought-after Mickleover neighbourhood, and buyers should factor in the plot size and local crime statistics when viewing.
4 bedroom detached house for sale in Homerton Vale, Mickleover, Derby, DE3 — £390,000 • 4 bed • 3 bath • 1469 ft²
4 bedroom town house for sale in Templeton Close, Mickleover, DE3 — £315,000 • 4 bed • 2 bath • 1270 ft²
4 bedroom detached house for sale in Carnforth Close, Mickleover, DE3 — £435,000 • 4 bed • 2 bath • 806 ft²
5 bedroom detached house for sale in Homerton Vale, Mickleover, Derby, Derbyshire, DE3 — £300,000 • 5 bed • 3 bath • 1267 ft²
4 bedroom semi-detached house for sale in Kensey Road, Mickleover, DE3 — £270,000 • 4 bed • 2 bath • 1015 ft²
3 bedroom semi-detached house for sale in Girton Way, Mickleover, DE3 — £250,000 • 3 bed • 2 bath • 933 ft²






















































































