Single-storey family home with large plot, double garage, and modern interiors..
Spacious detached bungalow on a large private plot
Double garage plus extensive driveway and hardstanding parking
Four bedrooms, three reception rooms — flexible family layout
Two modern bathrooms; en-suite to principal bedroom
Newly renovated interiors; move-in ready presentation
EPC rating D; oil-fired central heating may raise running costs
Slow broadband and average mobile signal in the village
Freehold, no flood risk; built 1950s–1960s (typical maintenance)
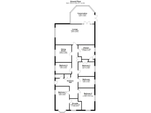
Set on a large private plot in Alkborough village, this immaculately presented four-bedroom detached bungalow suits families or downsizers who value single-storey living and outdoor space. The layout includes a generous lounge, conservatory, dining room and a contemporary kitchen, giving flexible living and entertaining options. Two modern bathrooms, including an en-suite to the principal bedroom, reduce the need for immediate work inside.
Practical benefits are clear: double garage plus extensive hardstanding and gravel driveway provide excellent parking and secure storage. The plot is private and low-maintenance with lawns and paved areas, and the property sits in a low-crime, affluent rural community close to highly rated primary schools. EPC D and oil-fired central heating are in place; the boiler and radiators are functional but oil can be more costly than mains gas and may influence running costs.
The bungalow was updated throughout and presents ready to move into, yet its 1950s–1960s construction and filled cavity walls mean buyers should expect typical maintenance for a home of this era. Broadband speeds and mobile signal are limited locally, so those who work from home should check connectivity options. Freehold tenure, no flood risk and a moderate council tax band add to the property’s practical appeal.
Overall, this property offers a comfortable, adaptable single-floor home with strong outdoor space, ample parking and contemporary interiors — especially attractive to families wanting village life or buyers seeking an accessible retirement home.
3 bedroom detached bungalow for sale in Huteson Lane, DN15 9JZ, DN15 — £250,000 • 3 bed • 1 bath • 1226 ft²
4 bedroom detached bungalow for sale in Main Street, Althorpe, DN17 — £349,950 • 4 bed • 2 bath • 1645 ft²
4 bedroom detached house for sale in Hill Crest, West Halton Lane, Alkborough, Scunthorpe, DN15 — £485,000 • 4 bed • 2 bath • 1507 ft²
3 bedroom bungalow for sale in Norfolk Avenue, Burton-Upon-Stather, Scunthorpe, DN15 — £225,000 • 3 bed • 1 bath • 980 ft²
3 bedroom detached bungalow for sale in Wiltshire Avenue, Burton-upon-Stather, SCUNTHORPE, DN15 — £215,000 • 3 bed • 2 bath • 991 ft²
4 bedroom detached bungalow for sale in East Common Lane, Scunthorpe, DN16 — £275,000 • 4 bed • 1 bath • 1070 ft²






























































































































