**Standout Features:**
- Detached timber chalet with breathtaking Loch Sunart views
- Located in the serene village of Strontian, within a generous 0.7-acre plot
- Newly renovated with open-plan living space and spacious vaulted ceilings
- Double glazing and electric heating for comfort
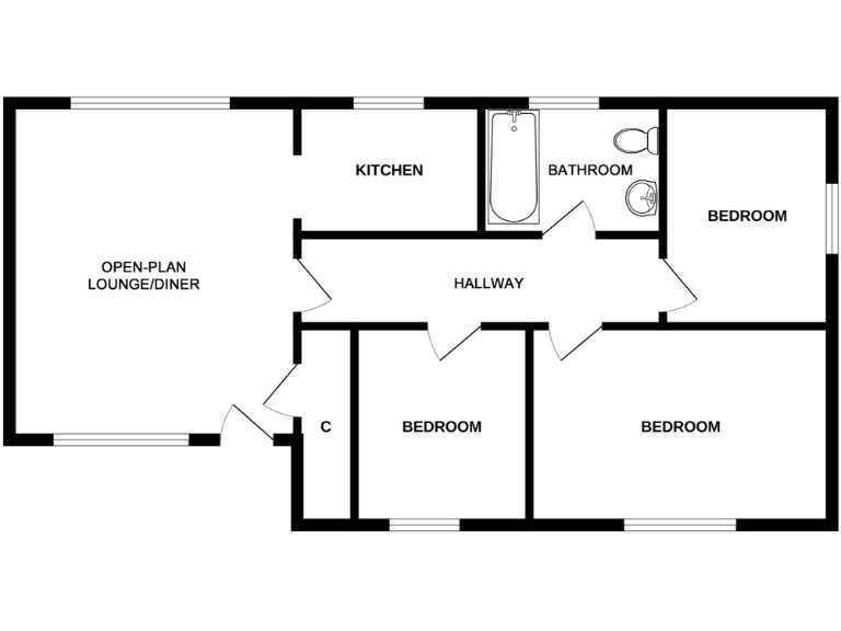
- Three cozy bedrooms and one bathroom
- Ample off-street parking
- Chain-free sale, ready for immediate occupancy
**Summary:**
Discover the charm of this delightful log cabin, nestled in the picturesque village of Strontian. Offering stunning views of Loch Sunart and surrounded by lush greenery, this newly renovated property provides a peaceful retreat with flexible accommodation all on one level. The spacious open-plan lounge and dining area is complemented by vaulted timber ceilings, creating a cozy yet airy ambiance. With three inviting bedrooms, a well-appointed bathroom, and beautiful grounds boasting plenty of outdoor space, this home presents a fantastic opportunity for families, holidaymakers, or investors seeking a lucrative rental in a sought-after location.
Despite its idyllic appeal, it's important to note the property may have a slow broadband connection and is set in a rural area that can be remote. However, this adds to its charm and tranquil lifestyle far removed from city bustle. The nearby amenities of Strontian, including shops, a primary and secondary school, and outdoor recreational opportunities such as skiing and fishing enhance its desirability. Don’t miss your chance to own this serene retreat—properties like these are rare and won’t be on the market for long!
3 bedroom detached bungalow for sale in 4 Lower Scotstown, Strontian, PH36 4JB, PH36 — £340,000 • 3 bed • 1 bath • 1302 ft²
4 bedroom detached house for sale in Sea Breeze, Camus Inas, Acharacle, PH36 4JQ, PH36 — £350,000 • 4 bed • 2 bath • 1281 ft²
1 bedroom cottage for sale in Gorten, 13 Anaheilt, Strontian, PH36 — £215,000 • 1 bed • 1 bath • 371 ft²
Bungalow for sale in Resipole Lodges, Strontian, Acharacle, Highland, PH36 — £185,000 • 1 bed • 1 bath
2 bedroom bungalow for sale in AN T'Abhall, Camas Inas, Acharacle, PH36 4JQ, PH36 — £275,000 • 2 bed • 1 bath
2 bedroom lodge for sale in Premium Holiday Lodges, Resipole Farm Holiday Park, Acharacle, Argyll and Bute, PH36 4HX, PH36 — £148,000 • 2 bed • 2 bath






























































































































