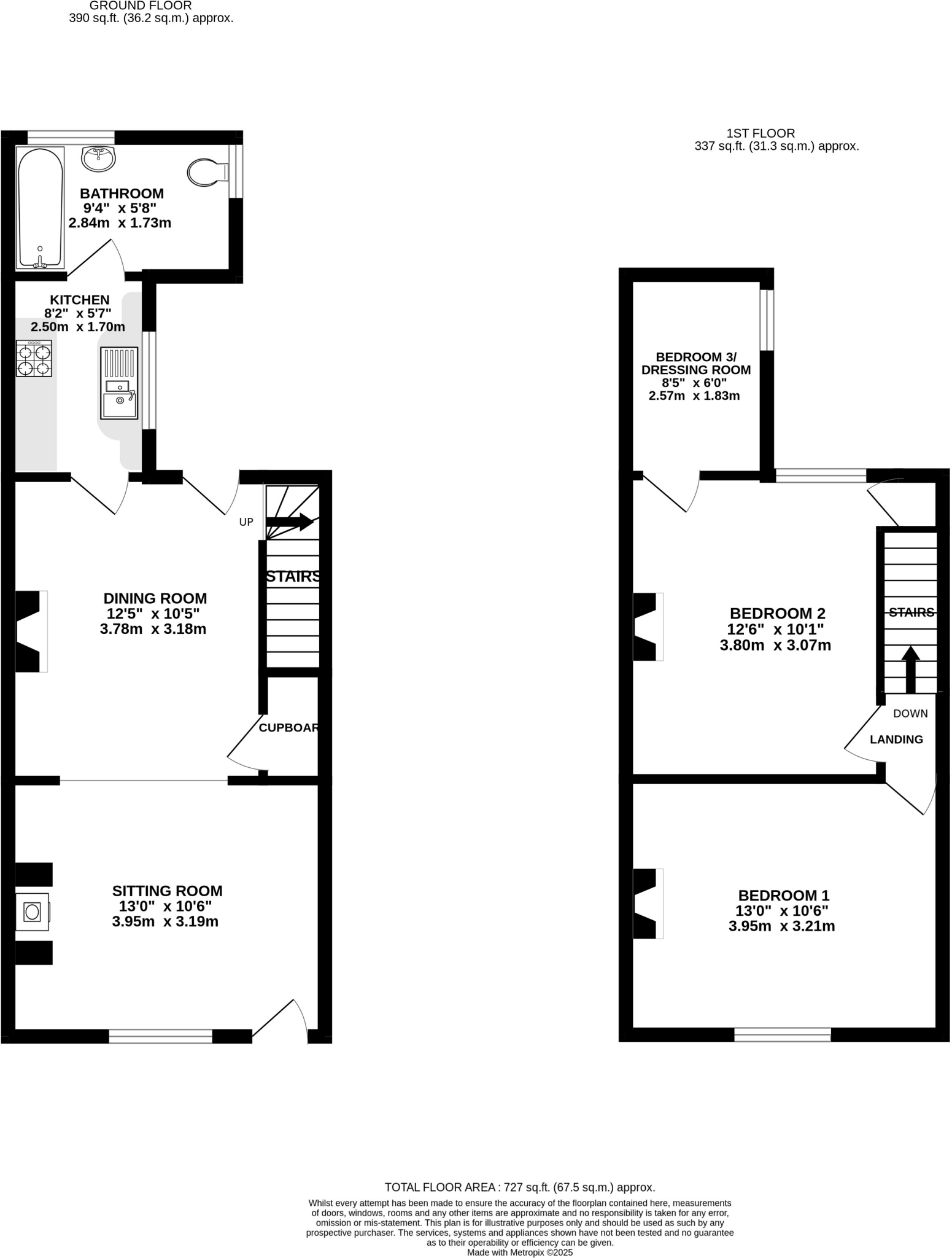
**Standout Features:**
- Charming Victorian mid-terrace cottage
- Spacious 22 ft sitting/dining room with wood burner
- Two generous double bedrooms, a third off Bedroom Two
- Generous south/easterly facing garden
- Freehold with no onward chain
- Ideal for cosmetic updates
- Quiet road close to Bungay town centre
**Property Summary:**
Discover this charming Victorian mid-terrace cottage on Southend Road, perfect for families or first-time buyers looking to add their personal touch. Spanning 727 sq ft, the property features an expansive 22 ft sitting/dining room complete with a cozy wood burner, ideal for family gatherings or entertaining. Upstairs, find two spacious double bedrooms, plus a versatile third bedroom that could serve as a study or dressing room.
The generous rear garden offers south/easterly sunlight and ample space for outdoor activities, ideal for summer enjoyment and potential for landscaping. Set in a quiet, sought-after location just 0.5 miles from Bungay town centre, this property combines a peaceful lifestyle with convenient access to local amenities. While the home does require some cosmetic updating, it presents a wonderful opportunity to create a bespoke retreat. Embrace this unique chance to secure a delightful property offered chain-free; arrange your viewing today and envision the possibilities!
3 bedroom semi-detached house for sale in 22 Southend Road, NR35 — £365,000 • 3 bed • 1 bath • 1271 ft²
3 bedroom cottage for sale in Turnstile Lane, Bungay, NR35 — £250,000 • 3 bed • 2 bath • 1157 ft²
3 bedroom end of terrace house for sale in London Road, Beccles, NR34 — £230,000 • 3 bed • 1 bath • 707 ft²
3 bedroom terraced house for sale in St. Johns Road, Bungay, NR35 — £290,000 • 3 bed • 1 bath • 927 ft²
4 bedroom terraced house for sale in St. Johns Road, Bungay, NR35 — £250,000 • 4 bed • 1 bath • 1076 ft²
3 bedroom end of terrace house for sale in Southend Road, Bungay, NR35 — £325,000 • 3 bed • 1 bath • 1431 ft²


































