Spacious period flat with renovation potential near Kelvinbridge amenities.
- Main‑door ground floor four-bedroom flat with period features
- High ceilings, bay windows, cornicing and working fireplace
- Small private front garden; communal rear garden access
- Freehold tenure offers ownership clarity and control
- Requires full renovation throughout; scope for redesign
- Located close to Kelvinbridge, Underground and University
- Excellent mobile signal and fast broadband for remote work
- Local area classed very deprived; council tax is expensive
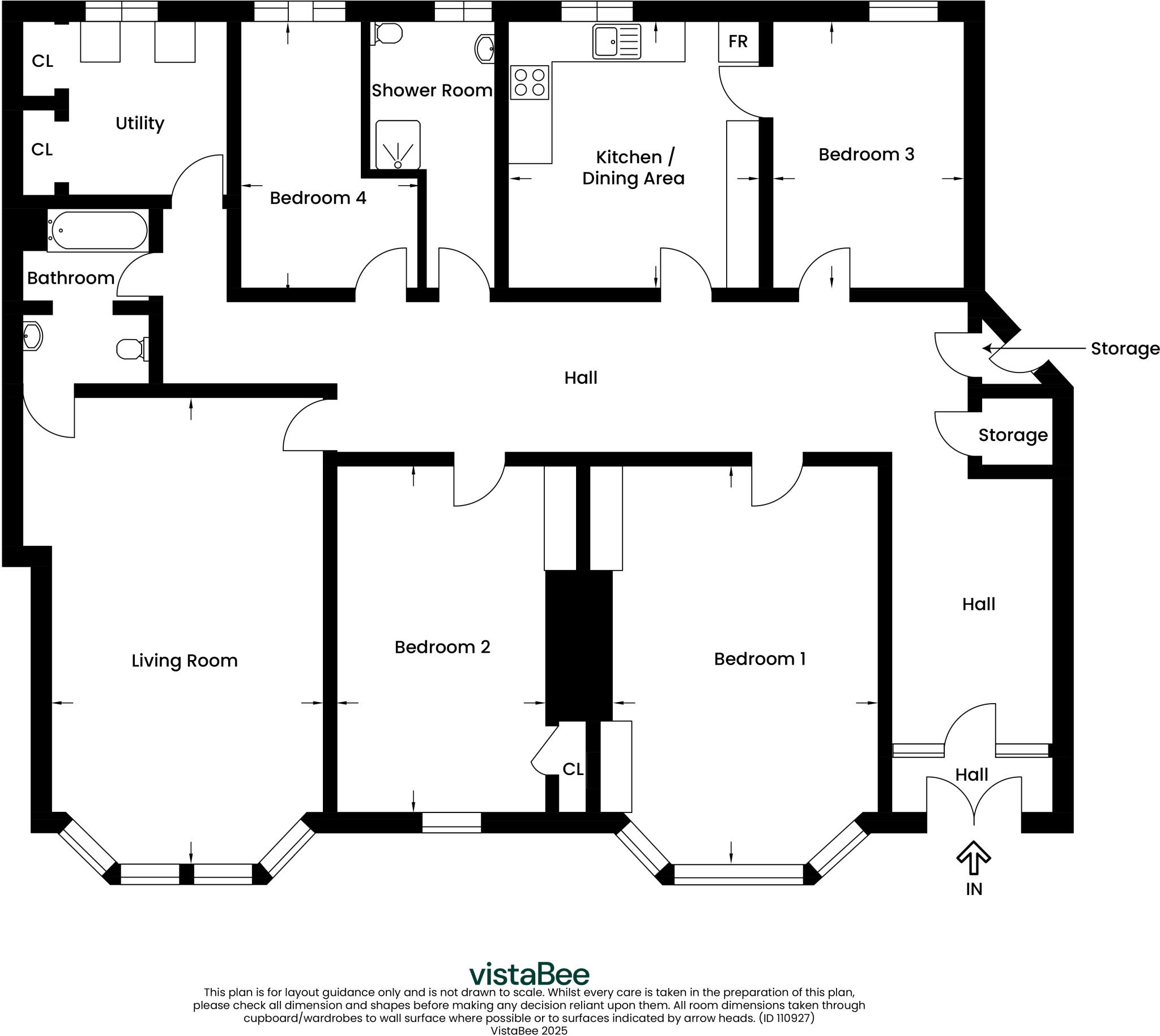
A rare main‑door ground floor tenement flat offering four bedrooms and generous period reception space in North Kelvinside. The apartment sits in a red sandstone building and retains strong Victorian features—high ceilings, bay windows, cornicing and a working fireplace—that give immediate character and scope to create a comfortable family home.
The flat requires full renovation, which is reflected in the price and presents clear scope to redesign the kitchen, bathrooms and internal layout to suit modern family living. It comes with a small private front garden, access to a communal rear garden and the security of freehold tenure.
Location is a major draw: walkable to Kelvinbridge shops, cafes, bars, the Underground and the University, with excellent mobile signal and fast broadband for home working. Note the property is in a very deprived local area and council tax is described as expensive; these are practical points to factor into running costs and resale timing.
For buyers who value period detail and space, this is a valuable renovation project in a sought‑after pocket of Glasgow, offering potential uplift once modernised. Investors or growing families willing to undertake works will find clear upside in both living quality and long‑term value.
2 bedroom flat for sale in Flat 3/2, 181 Copland Road, Glasgow, G51 2UW, G51 — £120,000 • 2 bed • 1 bath • 1281 ft²
4 bedroom flat for sale in Dowanside Road, Dowanside, Glasgow, G12 — £450,000 • 4 bed • 2 bath
4 bedroom apartment for sale in Kelvinside Terrace South, North Kelvinside, Glasgow, G20 — £470,000 • 4 bed • 1 bath • 1472 ft²
2 bedroom flat for sale in Mingarry Street, North Kelvinside, G20 — £249,000 • 2 bed • 1 bath • 928 ft²
1 bedroom flat for sale in 2/1 98 Middleton Street, Glasgow, G51 1AE, G51 — £49,999 • 1 bed • 1 bath • 484 ft²
3 bedroom ground floor flat for sale in Main Door 154 Wilton Street, North Kelvinside, G20 6BS, G20 — £440,000 • 3 bed • 1 bath • 1604 ft²






































































