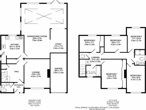
### Standout Features:
- Spacious five-bedroom detached home.
- Elegant extended orangery for light-filled living.
- Integral garage with private driveway for multiple vehicles.
- Beautifully landscaped rear garden with side access.
- Modern wet room and additional family bathroom.
- Close proximity to Littlehampton's beaches and amenities.
### Summary:
Discover a remarkable five-bedroom detached home in the coveted area of Littlehampton, perfectly designed for modern family living. Boasting a generous layout with two inviting reception spaces—including a stunning extended orangery that floods the area with natural light—this property offers charm and comfort. The cozy living room features a bay window and log burner, while the newly updated kitchen is equipped with integrated appliances, ensuring functionality meets style.
Upstairs, you will find spacious bedrooms, alongside a contemporary wet room and family bathroom, making it ideal for large families or those seeking versatility. Enjoy the lush, landscaped rear garden—an entertainer's dream with ample space for relaxation and outdoor fun. With an integral garage and a private in-and-out driveway, parking is a breeze.
Set within a friendly, well-kept neighborhood, this home is just a short walk from Littlehampton's beautiful beaches and local amenities, including schools and recreational facilities. Viewing is highly recommended for those looking to embrace spacious, stylish living close to the coast. Don't miss your chance—properties like this are in high demand!
4 bedroom detached house for sale in Steele Crescent, Littlehampton, West Sussex, BN17 — £475,000 • 4 bed • 2 bath • 1269 ft²
4 bedroom detached house for sale in St. Winefrides Road, Littlehampton, West Sussex, BN17 — £685,000 • 4 bed • 2 bath • 1453 ft²
3 bedroom link detached house for sale in Kingfisher Drive, Littlehampton, West Sussex, BN17 — £389,950 • 3 bed • 2 bath • 1019 ft²
5 bedroom detached house for sale in Toddington Park, Littlehampton, West Sussex, BN17 — £595,000 • 5 bed • 3 bath • 2403 ft²
3 bedroom detached house for sale in Jackson Way, Wick, Littlehampton, West Sussex, BN17 — £375,000 • 3 bed • 2 bath • 991 ft²
3 bedroom detached house for sale in Paterson Wilson Road, Littlehampton, West Sussex, BN17 — £415,000 • 3 bed • 1 bath • 1122 ft²






































































































