IG8 7LW - 4 bedroom terraced house for sale in Glastonbury Avenue, Wo…

View on Property Piper

4 bedroom terraced house for sale in Glastonbury Avenue, Woodford Green, IG8

Summary - Glastonbury Avenue, Woodford Green, IG8 IG8 7LW

4 bed 1 bath Terraced

Renovated, chain-free terraced house near Woodford Station and top schools.
Chain-free four-bedroom mid-terrace
A chain-free, four-bedroom mid-terraced house in Woodford Green offering immediate move-in comfort after recent renovations. The property benefits from a modernised kitchen, an updated bathroom and double glazing, making it comfortable now while leaving scope for improvement.

Set on a decent plot with an attractive private rear garden and off-street parking for two cars, the home sits within a strong school catchment and is an easy walk to Woodford Central Line station. The through lounge provides flexible living space and good natural light throughout.

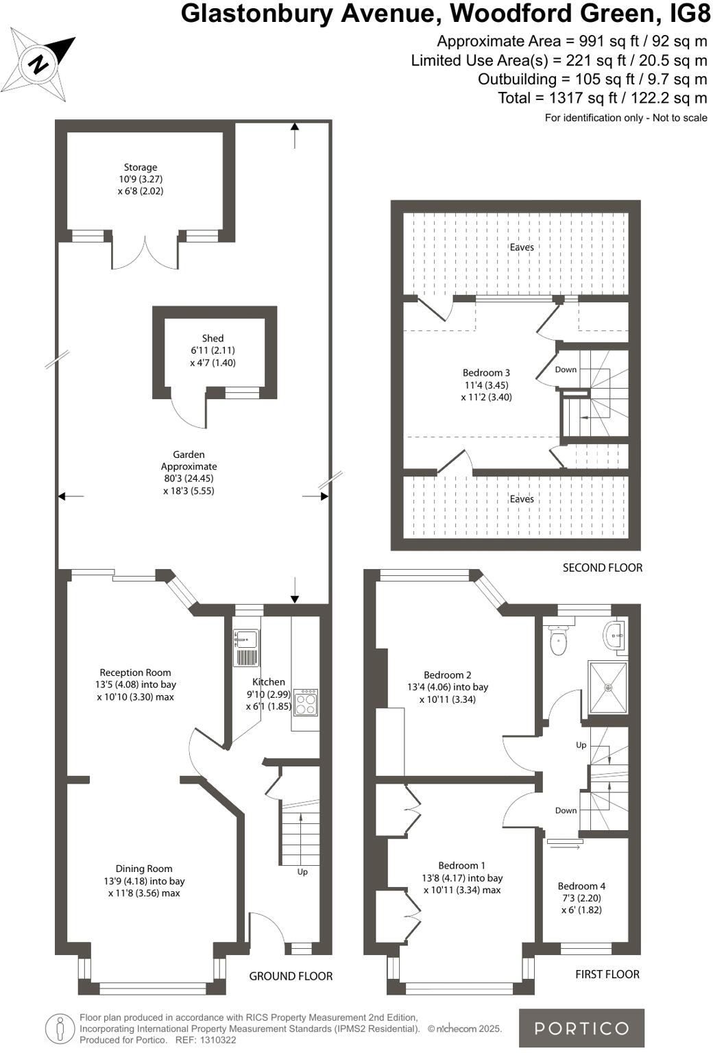
The house is smaller than many family homes (circa 991 sqft) and has a single bathroom, so families should note the compact overall size and layout. Constructed c.1900–1929 with solid brick walls (assumed uninsulated), the property offers further development potential — loft or rear extension subject to planning — but additional insulation and upgrade works may be needed to improve energy efficiency (current EPC D).

Property Details

Image Descriptions

Floorplan Description

Rooms

Textual Property Features

Target Audience

AI Tags

Detected Visual Features

EPC Details

Nearby Schools

Nearest Bars And Restaurants

,,,,}

Nearest General Shops

,,}

Nearest Grocery shops

,,}

Nearest Supermarkets

,,}

Nearest Religious buildings

,,}

Nearest Medical buildings

,,,}

Nearest Airports

,}

Nearest Leisure Facilities

,,,,}

Nearest Tourist attractions

,,}

Nearest Train stations

,,,,}

Nearest Bus stations and stops

,,,,}

Nearest Hotels

,,}

Tags

Local Market Stats

AirBnB Data

Similar Properties

Meta

High Res Images

Compatible Images

Low res Images

Thumbnails

Raw Images

High Res Floorplan Images

Compatible Floorplan Images

Low res Floorplan Images

FloorplanImages Thumbnail

Raw Floorplan Images