Period cottage with planning permission to extend to four bedrooms.
Detached three-bedroom cottage on a large tree-lined plot
Mill Lane Cottage is a detached three-bedroom home set on a generous, tree-lined plot in Adlington village, offering wide countryside views and a large side garden ideal for family use or extension. The house retains period character (bay windows, brickwork and tiled fireplaces) and includes a detached garage with driveway parking.
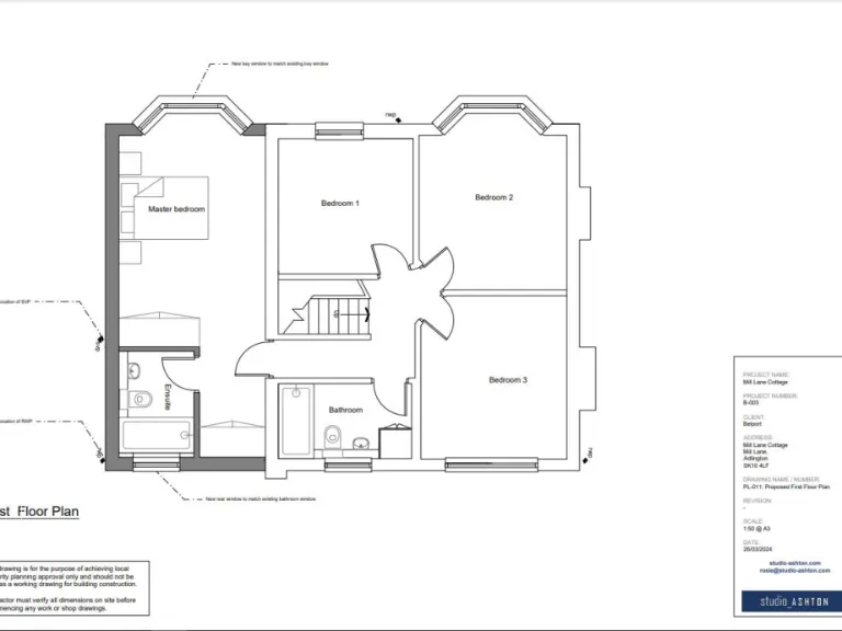
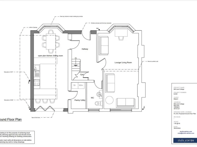
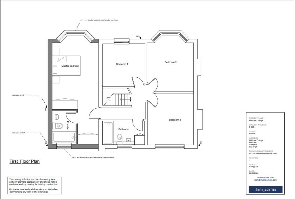
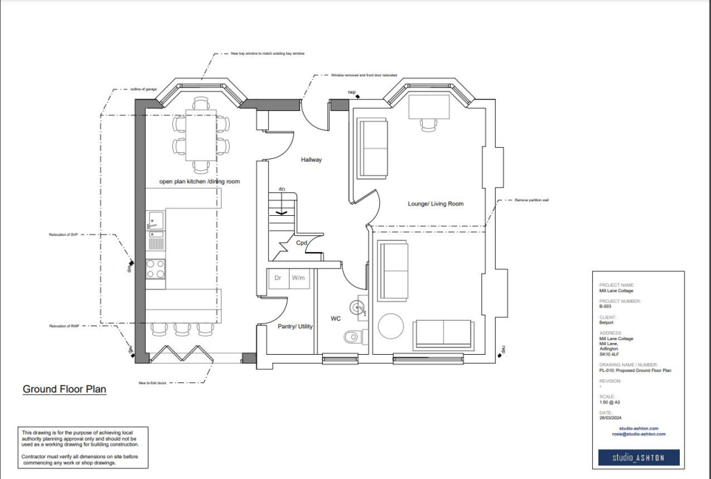
The property requires modernisation throughout but benefits from full planning permission (ref 24/1516M) for a two-storey extension to create a four-bedroom, two-bathroom home — a clear uplift opportunity for a growing family or buyer wanting to add value. Accommodation is arranged over two storeys with lounge, dining room, kitchen, three double bedrooms, bathroom and separate WC.
Buyers should note material items: the home currently uses electric storage heating, the cavity walls are assumed uninsulated, and it will be converted from a septic tank to mains drainage before completion. Council Tax Band E and the single existing bathroom are practical considerations for larger households.
This is a countryside opportunity for someone seeking character and scope rather than a turnkey move. With excellent mobile signal, nearby rail links to Manchester and London, and highly regarded local schools, the cottage is well placed for family life while offering immediate renovation and extension potential.
3 bedroom detached house for sale in Mill Lane, Adlington, Macclesfield, Cheshire, SK10 — £900,000 • 3 bed • 2 bath • 2365 ft²
3 bedroom detached house for sale in BONIS HALL LANE, Prestbury, SK10 4LP, SK10 — £750,000 • 3 bed • 2 bath • 1792 ft²
3 bedroom terraced house for sale in Pott Mill Cottages, Pott Shrigley, Macclesfield, SK10 — £395,000 • 3 bed • 2 bath • 1025 ft²
5 bedroom detached house for sale in Wych Lane, Adlington, Macclesfield, SK10 — £1,095,000 • 5 bed • 2 bath • 2396 ft²
4 bedroom detached house for sale in LONDON ROAD, Adlington, SK10 4NG, SK10 — £925,000 • 4 bed • 2 bath • 2637 ft²
3 bedroom detached house for sale in Roundy Lane, Adlington, SK10 — £750,000 • 3 bed • 2 bath • 1684 ft²


























































































