Private garden plus long lease — ideal for first-time purchasers or buy-to-let investors.
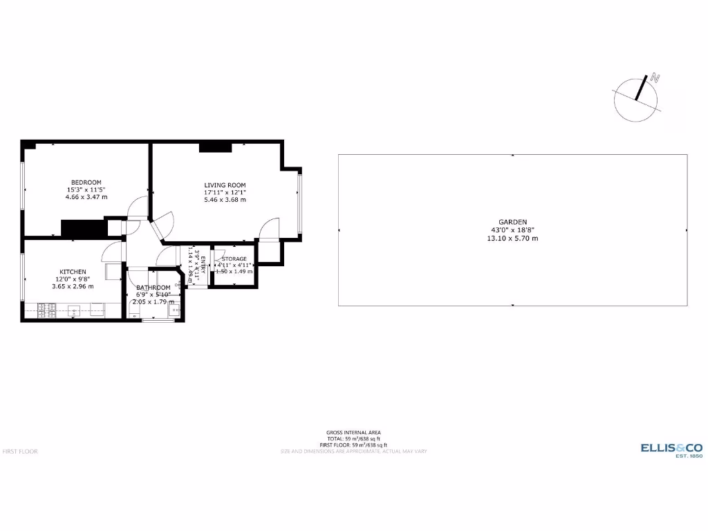
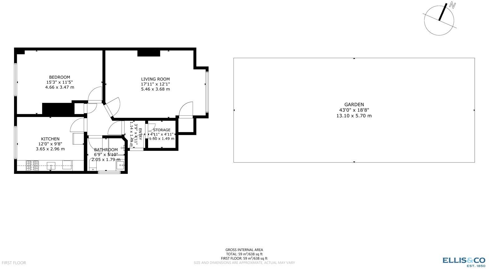
- 638 sq ft first-floor maisonette with private garden
- Long lease: approximately 141 years remaining
- Chain free for a quicker completion
- Modern fitted kitchen with built-in appliances
- On-street permit parking only; no private parking
- Service charge about £1,300 pa; ground rent £250 pa
- Area classified as deprived with above-average crime
- Fast broadband and excellent mobile signal
Set on the first floor with a private garden, this 638 sq ft maisonette offers roomy, well-laid-out accommodation and a modern fitted kitchen. The long lease (approx. 141 years) and chain-free sale make purchase straightforward for first-time buyers or investors seeking immediate possession.
Highlights include generous living space, a bright reception room, and good digital connectivity with fast broadband and excellent mobile signal. Local schools include several Ofsted-rated Good and Outstanding options, and nearby shops and transport links place everyday amenities within easy reach.
Buyers should note the property sits in a deprived area with above-average local crime rates; this will be important for families and some investors to consider. The tenure is leasehold with an average annual service charge around £1,300 and a small ground rent of £250.
Overall this is a practical, move-in-ready flat with garden space and sensible running costs, but purchasers should weigh the neighbourhood profile and ongoing leasehold charges against the long lease and convenient location.
1 bedroom maisonette for sale in Abbots Road, Edgware, HA8 — £300,000 • 1 bed • 1 bath • 366 ft²
1 bedroom ground floor flat for sale in St. Andrews Road, Kingsbury, London, NW9 — £335,000 • 1 bed • 1 bath • 616 ft²
2 bedroom apartment for sale in Ray Gardens, Stanmore, Middlesex, HA7 — £325,000 • 2 bed • 1 bath • 735 ft²
2 bedroom maisonette for sale in Harrow Road, HA0 — £350,000 • 2 bed • 1 bath • 636 ft²
2 bedroom maisonette for sale in Heather Park Drive, Wembley, HA0 — £350,000 • 2 bed • 1 bath • 490 ft²
1 bedroom maisonette for sale in Walton Avenue, Harrow, HA2 — £210,000 • 1 bed • 1 bath • 384 ft²














































































