Quiet single-floor living with garage and communal support for later life.
Detached single-storey retirement bungalow with private garage and communal gardens
Leasehold with approximately 72 years remaining — may affect mortgage availability
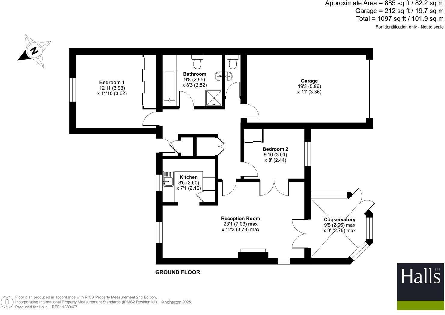
Two flexible bedrooms; one could serve as a dining room or study
Conservatory overlooks paved, low-maintenance rear patio with raised borders
Electric underfloor heating — convenient but typically costlier than gas heating
Very slow broadband speeds in the area; limited internet performance likely
Purpose-built complex with communal lounge, maintained gardens and optional care
Low-crime, peaceful hamlet location with good road and rail links
This well-kept two-bedroom bungalow sits within a purpose-built retirement development in peaceful Gobowen. The single-storey layout feels roomy and flexible, with an impressive lounge/diner, conservatory overlooking a low-maintenance walled patio, and the practicality of a private garage. Communal gardens and on-site care facilities provide reassurance and community without sacrificing independence.
Practical considerations are clear and factual. The property is leasehold with around 72 years remaining — a level that could make some mortgage lenders reluctant to lend. Broadband speeds are very slow in the area; residents should expect limited internet performance unless alternative solutions are arranged. Heating is electric underfloor, convenient but typically more expensive than mains gas alternatives.
For a downsizer or someone seeking retirement security, the bungalow’s layout, garage, and communal upkeep are strong positives. The setting is quiet, low-crime and well connected to local shops and transport links, including a mainline railway. Buyers should factor in the lease length and potential lending limits, and consider any future costs to improve connectivity or alter heating arrangements.
Overall this property suits someone prioritising an easy-care, ground-floor home with added support options nearby. It represents comfortable retirement living with sensible compromises to be reviewed before purchase.
2 bedroom bungalow for sale in Meadowbrook Court, Gobowen, Oswestry., SY10 — £115,000 • 2 bed • 1 bath • 1091 ft²
2 bedroom bungalow for sale in Twmpath Lane, Gobowen, Oswestry., SY10 — £125,000 • 2 bed • 1 bath • 1085 ft²
2 bedroom semi-detached bungalow for sale in Twmpath Lane, Gobowen, Oswestry, SY10 — £115,000 • 2 bed • 1 bath • 822 ft²
2 bedroom semi-detached bungalow for sale in Twmpath Lane, Gobowen, Oswestry, SY10 — £110,000 • 2 bed • 1 bath • 1036 ft²
2 bedroom terraced bungalow for sale in 9 Meadowbrook Court, Twmpath Lane, Gobowen, Oswestry, SY10 — £115,000 • 2 bed • 1 bath • 930 ft²
1 bedroom semi-detached bungalow for sale in 40 Meadowbrook court, Twmpath Lane, Gobowen, Oswestry, SY10 — £62,500 • 1 bed • 1 bath • 684 ft²


























































































